Maison À vendre à Capreol, Ontario
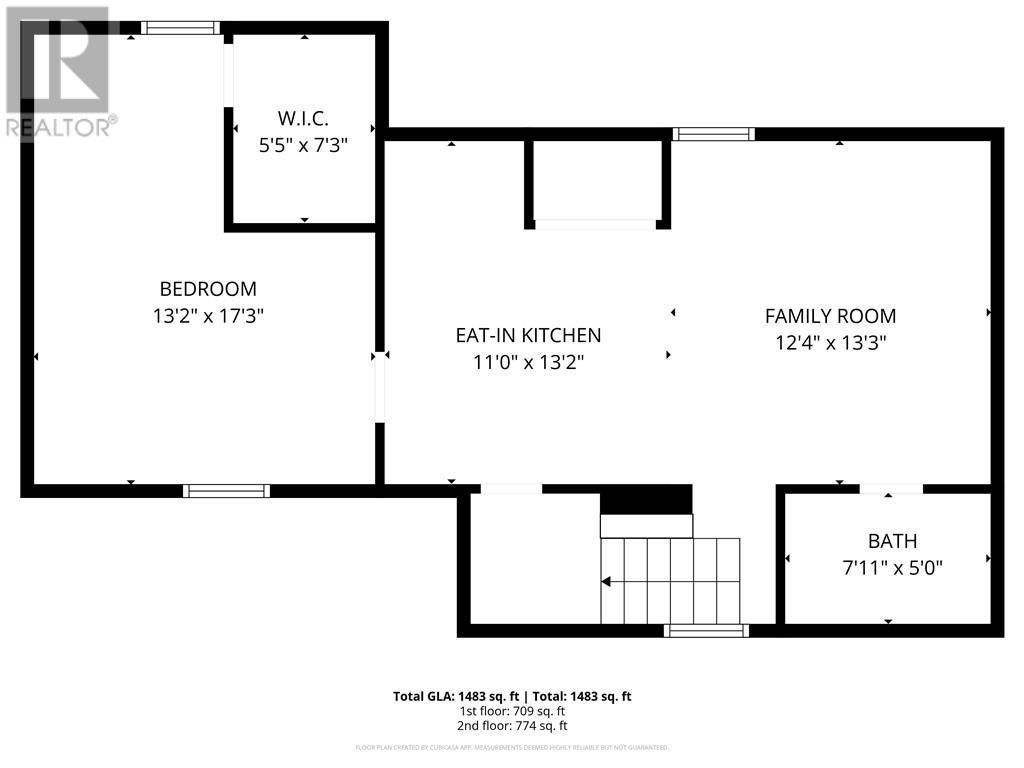
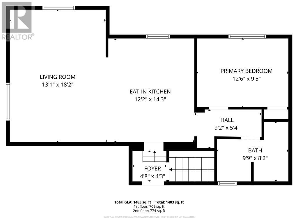
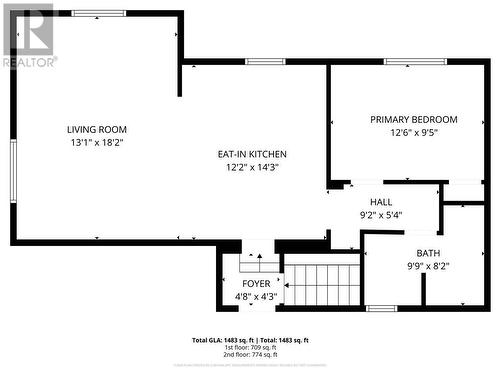
279 900 $ ÉvaluationExpressMC:2 Chambres
2 Salles de bain
-
Détails
-
Carte
-
Données démographiques
-
Vue de la rue
-
Itinéraire
-
Publicité

























