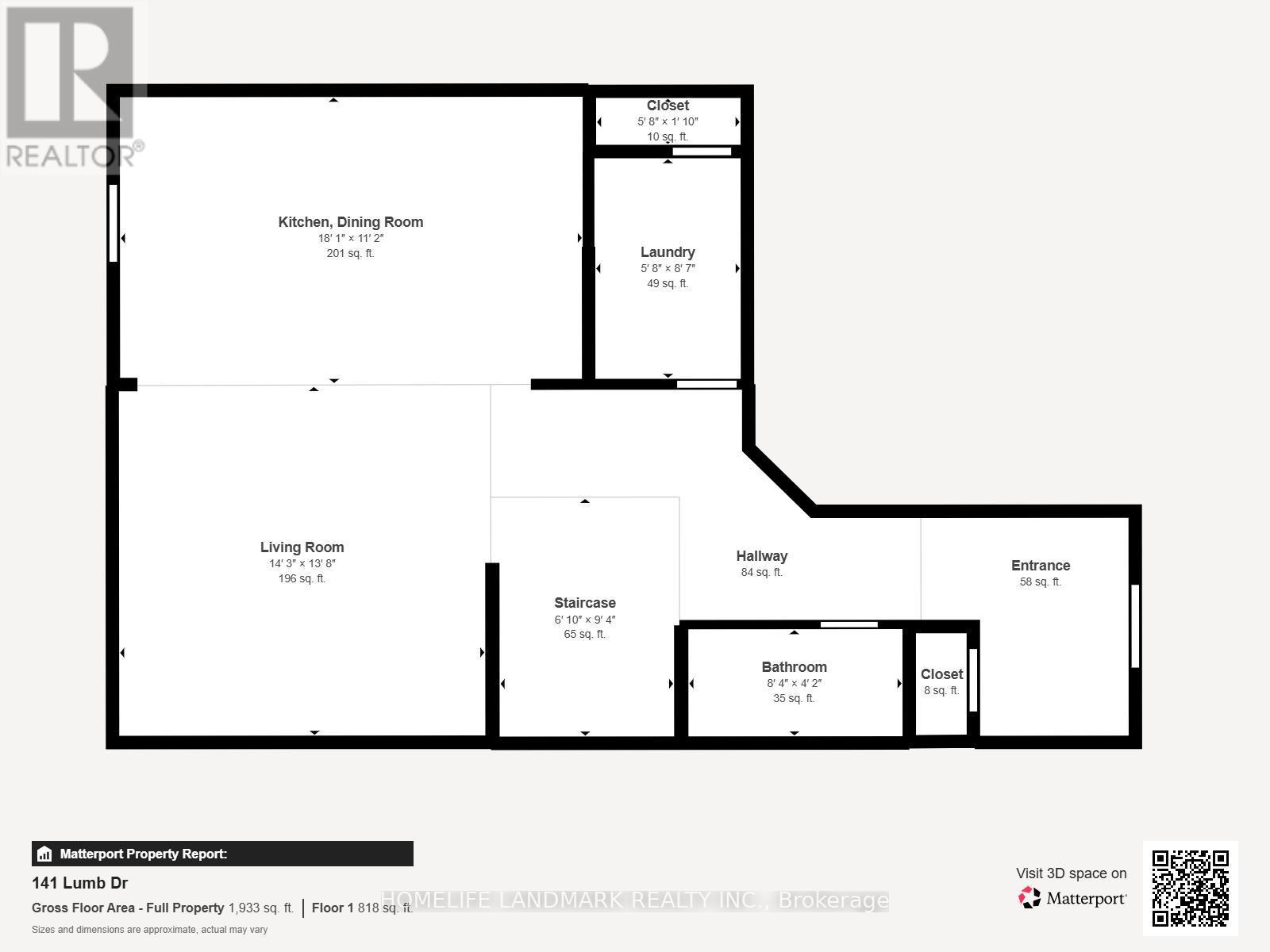
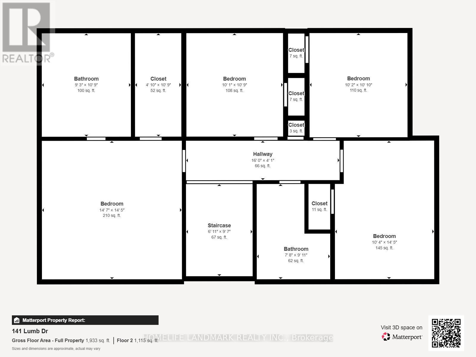
Maison À vendre à Shades Mills, Cambridge, Ontario
939 800 $ ÉvaluationExpressMC: Non disponible4 Chambres
3 Salles de bain
-
Détails
-
Carte
-
Données démographiques
-
Vue de la rue
-
Itinéraire
-
Publicité



































