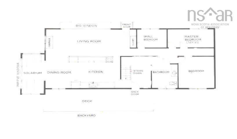
Maison À vendre à Antigonish, Nouvelle-Écosse
469 000 $ ÉvaluationExpressMC:6 Chambres
2 Salles de bain
-
Détails
-
Carte
-
Données démographiques
-
Vue de la rue
-
Itinéraire
-
Publicité














