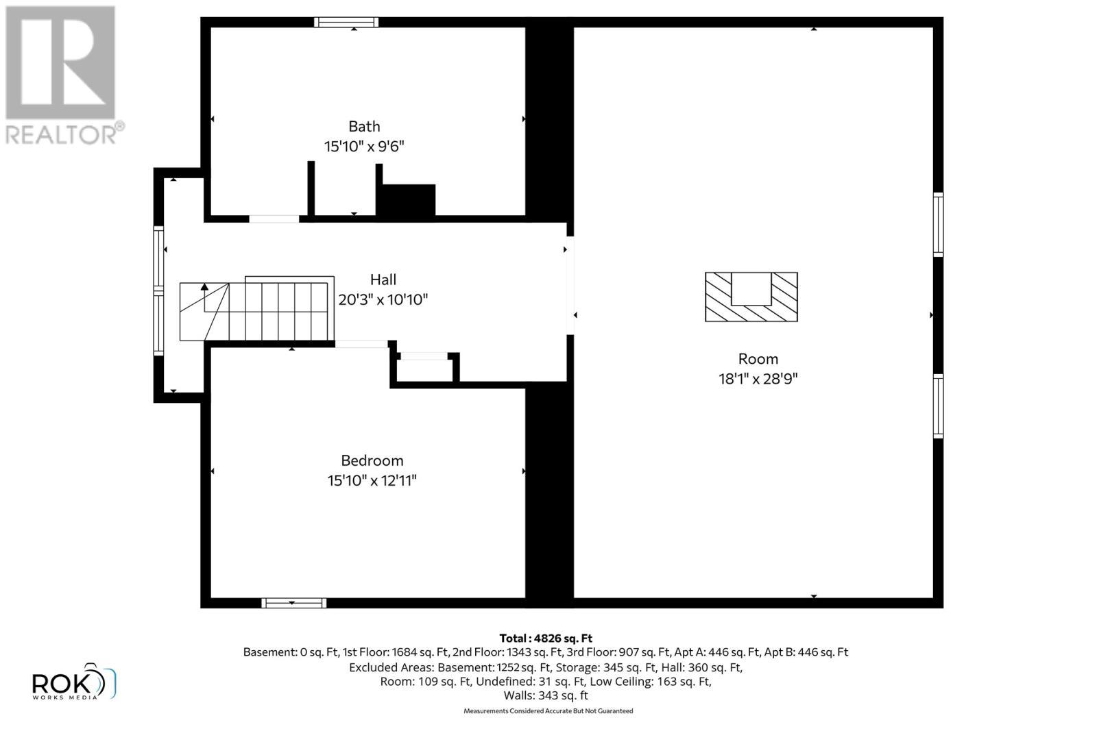
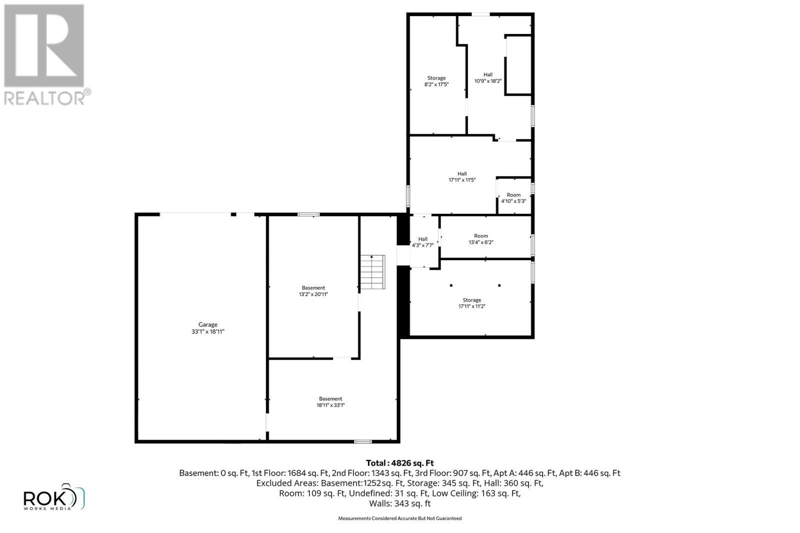
Maison À vendre à Glenridge Crescent, St. John's, Terre-Neuve-et-Labrador
1 249 000 $ ÉvaluationExpressMC: Non disponible6 Chambres
6 Salles de bain
-
Détails
-
Carte
-
Données démographiques
-
Vue de la rue
-
Itinéraire
-
Publicité
MULTIMEDIA




























