Maison À vendre à Sandy Hill - Ottawa East, Ottawa, Ontario
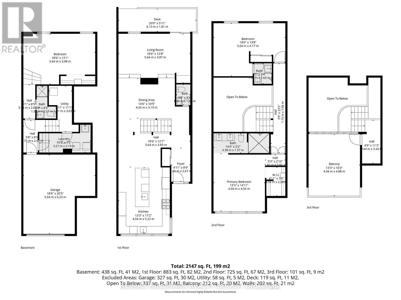
1 295 000 $ ÉvaluationExpressMC: Non disponible2+1 Chambres
4 Salles de bain
-
Détails
-
Carte
-
Données démographiques
-
Vue de la rue
-
Itinéraire
-
Publicité
MULTIMEDIA














































