Maison À vendre à Rathwood, Mississauga, Ontario
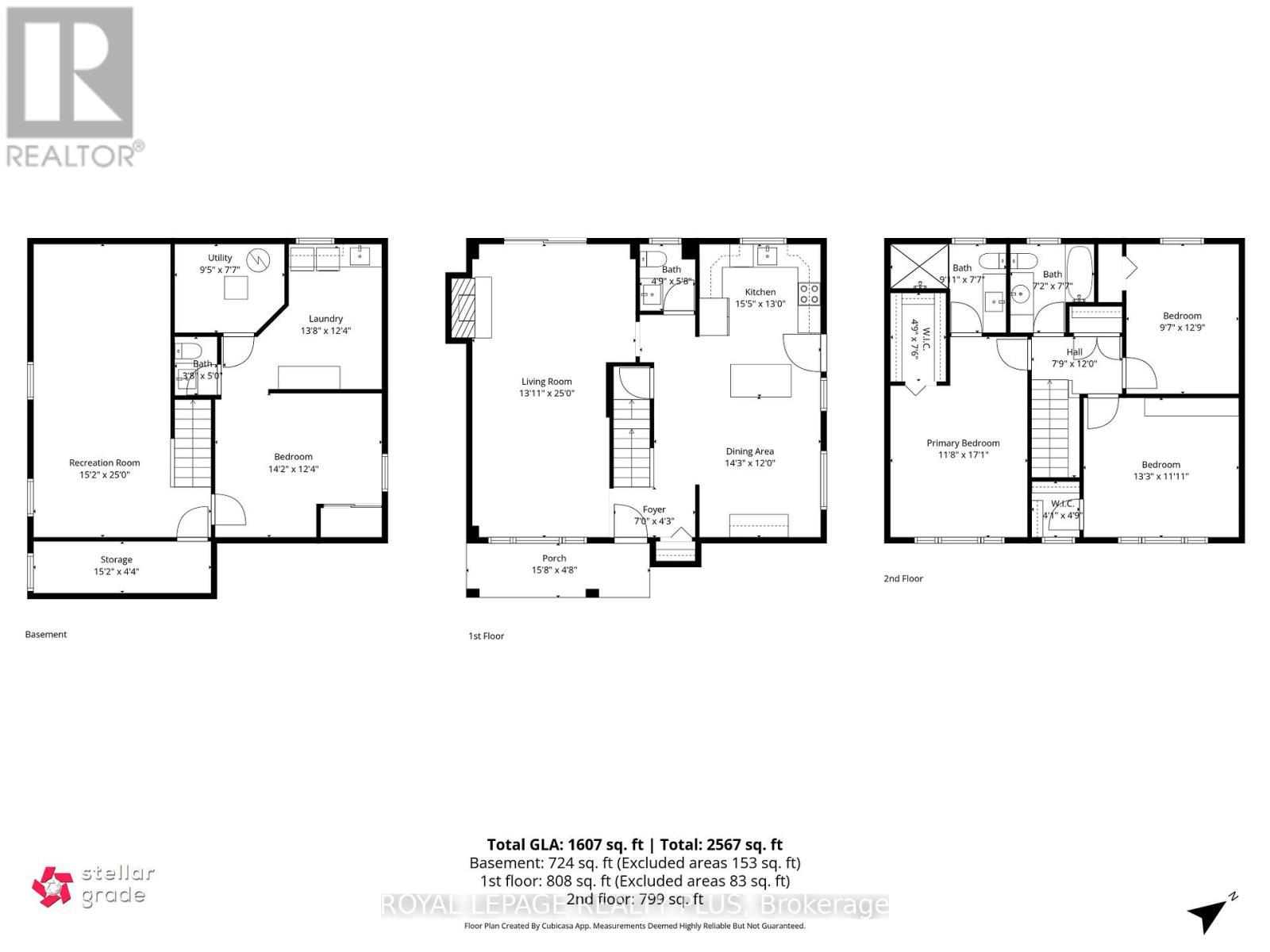
1 399 000 $ ÉvaluationExpressMC:3+1 Chambres
4 Salles de bain
-
Détails
-
Carte
-
Données démographiques
-
Vue de la rue
-
Itinéraire
-
Publicité
MULTIMEDIA






































