Maison À vendre à Prince Albert, Saskatchewan
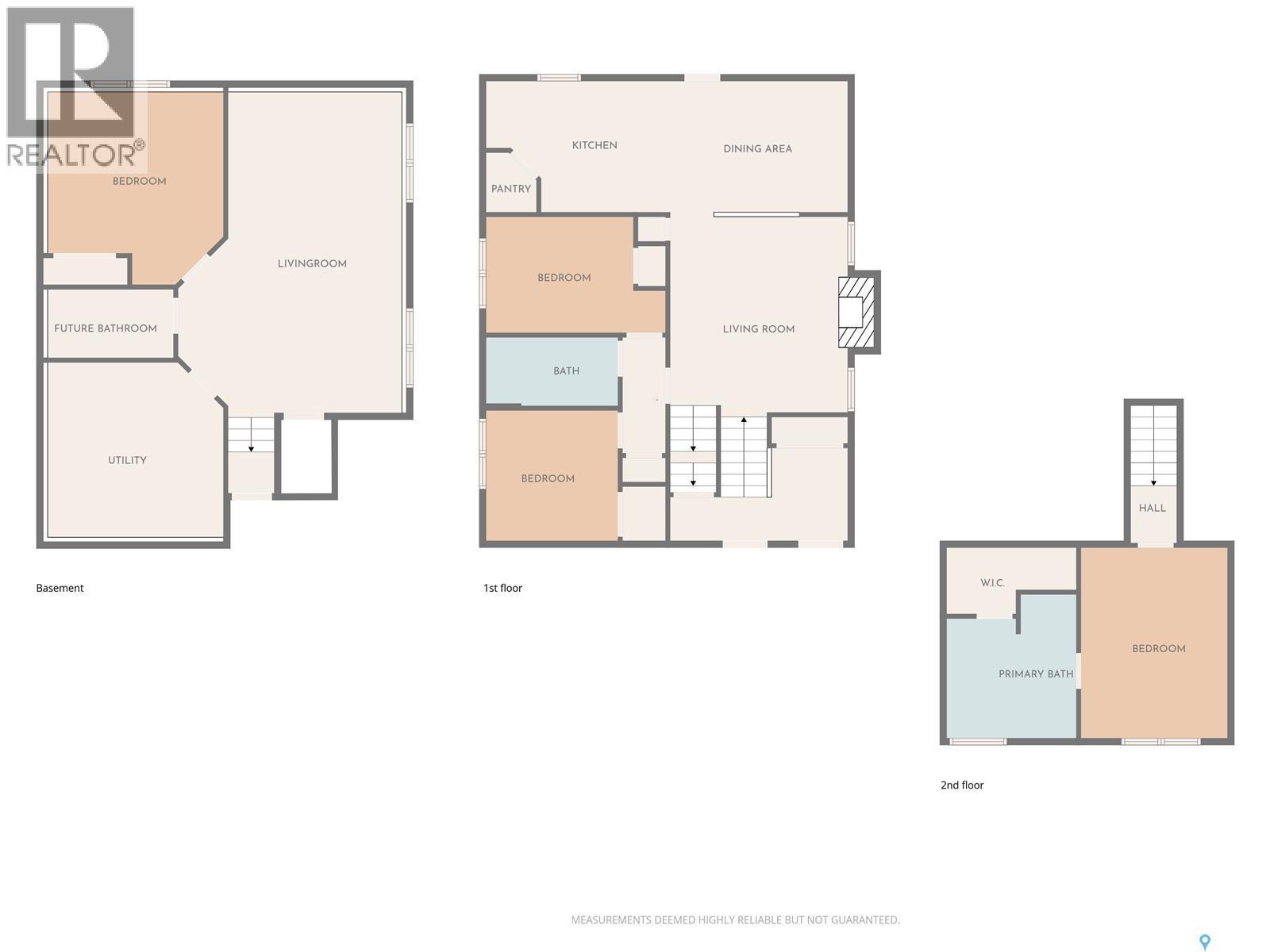
529 900 $ ÉvaluationExpressMC:4 Chambres
2 Salles de bain
-
Détails
-
Carte
-
Données démographiques
-
Vue de la rue
-
Itinéraire
-
Publicité









































