Maison À vendre à Lanigan, Saskatchewan
456 000 $ ÉvaluationExpressMC: Non disponible5 Chambres
4 Salles de bain
-
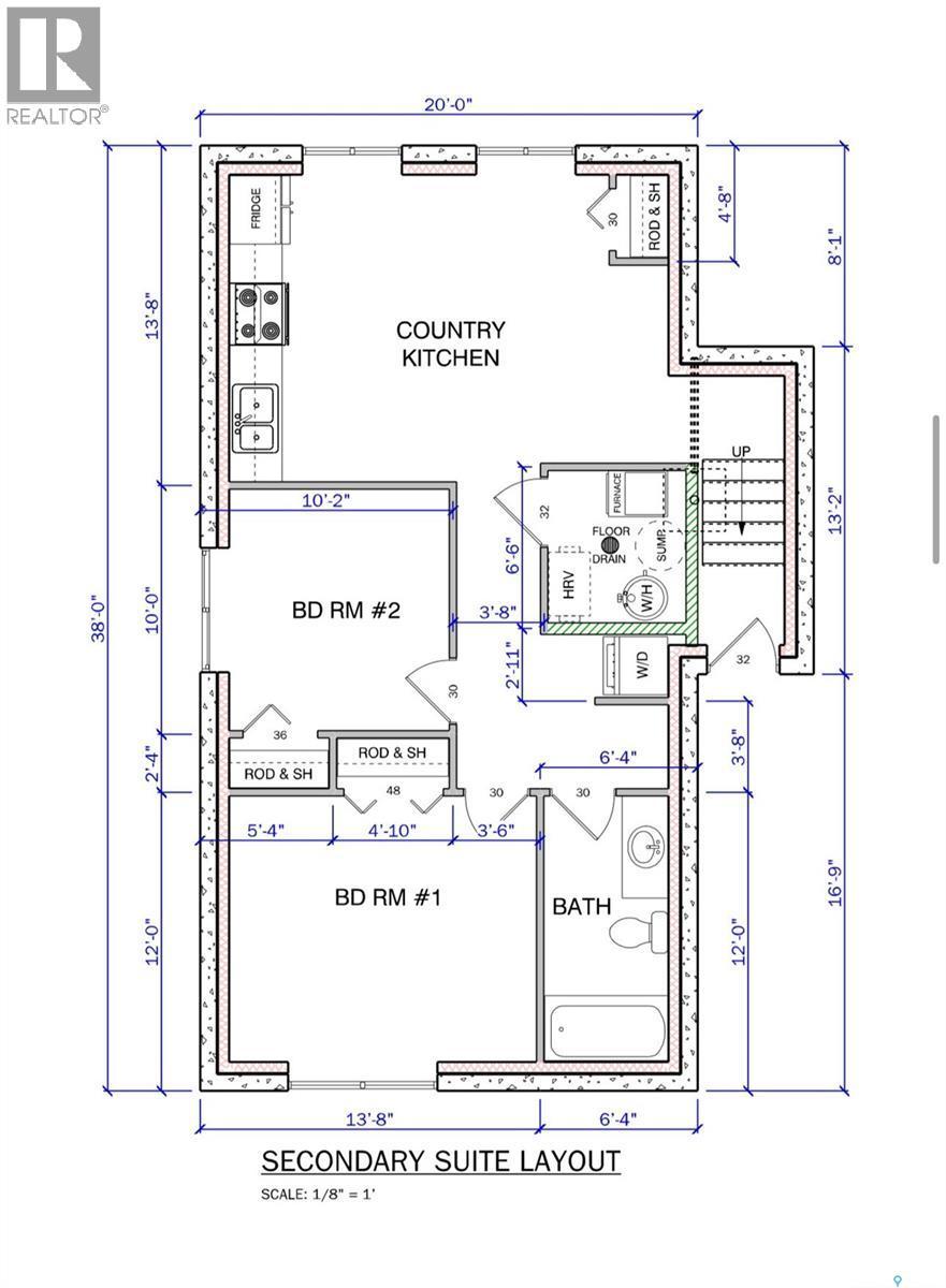
Détails
-
Carte
-
Données démographiques
-
Vue de la rue
-
Itinéraire
-
Publicité







