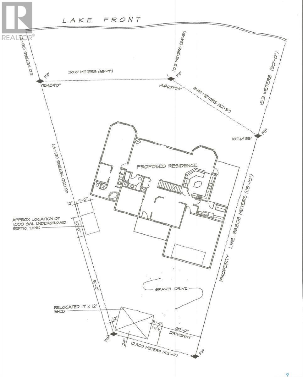
Terrain À vendre à Lakeland Rm No. 521, Saskatchewan
599 900 $None Chambres
-
Détails
-
Carte
-
Données démographiques
-
Vue de la rue
-
Itinéraire
-
Publicité


















