Investissement À vendre à Parc Kent, Montréal (Côte-des-Neiges/Notre-Dame-de-Grâce), Québec
1 575 000 $-
Détails
-
Carte
-
Données démographiques
-
Vue de la rue
-
Itinéraire
-
Publicité
MULTIMEDIA
Remarques :
Occasion exceptionnelle au coeur de Côte-des-Neiges. Ce duplex bien entretenu avec bachelor, offrant une double occupation, se distingue par sa construction solide, ses finitions de qualité et ses espaces de vie généreux dans les trois unités. Le rez-de-chaussée bénéficie d'un accès direct à un beau jardin privé, tandis que l'unité à l'étage profite de deux balcons, ajoutant des espaces de vie extérieurs appréciables.La propriété comprend deux garages, un stationnement supplémentaire dans l'allée, ainsi qu'un sous-sol fini, offrant à la fois confort et fonctionnalité. De nombreuses mises à jour ont été effectuées au fil des ans. Idéalement si
Idéalement situé au coeur de Côte-des-Neiges, ce superbe duplex avec bachelor offre un espace de vie généreux, un confort remarquable et une flexibilité exceptionnelle grâce à sa triple occupation. Parfait pour un propriétaire occupant ou un investisseur, chaque unité bénéficie d'une belle luminosité et de pièces bien proportionnées.
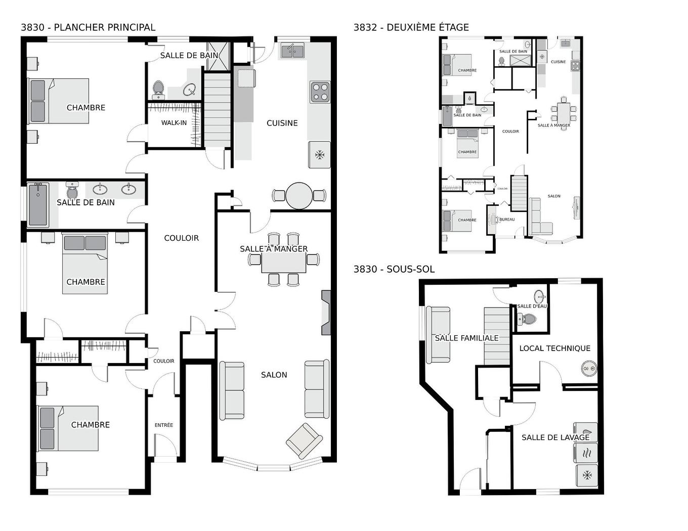
Rez-de-chaussée (3830)
Un espace accueillant comprenant 3 chambres, 2 salles de bain complètes et une salle d'eau, un vaste salon et salle à manger, une cuisine fonctionnelle avec coin dinette, ainsi qu'une salle familiale au sous-sol aménagé et une buanderie. Accès direct à un magnifique jardin privé. Deux garages et stationnement extérieur inclus.
2e étage (3832)
Une unité spacieuse offrant 3 chambres plus 1 bureau , 2 salles de bain, un grand salon et salle à manger, une cuisine avec coin repas et deux balcons offrant des espaces extérieurs agréables.
Bachelor (3830A)
Une unité pratique comprenant une chambre, une cuisine et une salle de bain -- idéale pour des revenus supplémentaires ou pour accueillir un proche.
Située à distance de marche de l'Hôpital général juif, du CHU Sainte-Justine, de l'Université de Montréal, du Collège Brébeuf, des transports en commun, des parcs et de toutes les commodités, cette propriété représente un parfait équilibre entre confort, emplacement stratégique et potentiel d'investissement.
Une opportunité rare dans l'un des quartiers les plus recherchés de Montréal.
Inclusions: INCLUSIONS -- Included in the sale are the following items: 3830 Air conditioning in the master bedroom and living room, stove & oven,1 electric garage door opener and 1 remote, closet in primary bedroom , cabanon, alarm system, basement in the bachelor sofa bed, fridge, stove, washer & dryer . 3832 Permanent light fixtures with fan in the 2 bedrooms, closet in primary bedroom.
Exclusions : 3830 Tous les rideaux et tringles, stores, tous les luminaires fixes, armoires de rangement du garage (sauf l'armoire en bois) 3832 Tous les rideaux et tringles, stores, luminaire fixe de la chambre principale, du salon, lave-vaisselle et tous les effets personnels
Particularités du bâtiment :
- Style: Duplex
- Allée: Asphalte
- Dimensions : 10.06 x 15.27 METRE
- Équipement disponible: Thermopompe murale
- Fenestration: Bois, PVC
- Fondation: Béton coulé
- Garage: Intégré
- Occupation: Double
- Proximité: Autoroute, Cégep, Garderie/CPE, Hôpital, Métro, Parc, Piste cyclable, École primaire, École secondaire, Ski de fond, Transport en commun, Université
- Revêtement: Brique, Pierre
- Revêtement de la toiture: Bitume et gravier
- Sous-sol: Entrée extérieure, Totalement aménagé
- Stationnement: Oui
- Terrain: Clôturé, Paysager
- Type de fenestration: Coulissante, Manivelle (battant)
- Mode de chauffage: Eau chaude, Plinthes électriques
- Énergie pour le chauffage: Électricité, Mazout
- Approvisionnement en eau: Municipalité
- Système d'égouts: Municipalité
Revenus bruts potentiels :
- Résidentiels : 88 200 $
Taxes:
- Taxes municipales: 7 839 $
- Taxe scolaire: 1 015 $
- Taxes annuelles totales: 8 854 $
Property Assessemnt:
- Évaluation du terrain: 404 100 $
- Évaluation de l'immeuble: 826 000 $
- Évaluation totale: 1 230 100 $
Caractéristiques :
- Bâti en: 1954
- Chambres : 3
- Dimensions du terrain : 369.00 Mètres carrés
- Irregular: Oui
- Largeur du terrain en façade : 11.14 Mètre
- Profondeur du terrain : 32.61 Mètre
- Salle(s) de bains : 3
- Zonage: RESI
- Nbre d'espaces de stationnement: 4
Unités à revenu :
Unité 1
- Pièces 8
- Chambres 3
- Salles de bain 2
Détails des pièces :
- Salon Rez-de-chaussée 3.81 m x 5.87 m 12.6 p x 19.3 p Plancher : Bois
- Salle à dîner Rez-de-chaussée 3.81 m x 2.64 m 12.6 p x 8.8 p Plancher : Bois
- Cuisine Rez-de-chaussée 3.28 m x 5.61 m 10.9 p x 18.5 p Plancher : Céramique Note: Coin repas
- Chambre principale Rez-de-chaussée 3.99 m x 4.57 m 13.1 p x 15.0 p Plancher : Bois Note: walk-in GDR
- Salle de bains Rez-de-chaussée 2.77 m x 1.96 m 9.1 p x 6.5 p Plancher : Céramique Note: en suite
- Salle de bains Rez-de-chaussée 3.96 m x 1.60 m 13.0 p x 5.3 p Plancher : Céramique
- Chambre Rez-de-chaussée 3.96 m x 3.35 m 13.0 p x 11 p Plancher : Bois
- Chambre Rez-de-chaussée 3.66 m x 4.14 m 12.0 p x 13.7 p Plancher : Bois
- Salle de lavage Sous-sol 2.92 m x 3.38 m 9.7 p x 11.1 p Plancher : Céramique
- Salle d'eau Sous-sol 1.04 m x 1.65 m 3.5 p x 5.5 p Plancher : Céramique
- Rangement Sous-sol 2.92 m x 3.43 m 9.7 p x 11.3 p Plancher : Béton
Unité 2
- Pièces 6
- Chambres 3
- Salles de bain 2
Détails des pièces :
Unité 3
- Pièces 2
- Chambres 1
- Salles de bain 1
Détails des pièces :
Convertir la mesure en :
Données fournies par : Centris - 600 Ch Du Golf, Ile -Des -Soeurs, Québec H3E 1A8
Nous croyons que tous les renseignements affichés sont exacts, mais nous ne le garantissons pas; les renseignements devraient être vérifiés de façon indépendante. Aucune garantie ou représentation de quelque nature que ce soit n’est offerte. Droits© 2021 Tous les droits sont réservés.

























































