Investissement À vendre à Duvernay, Laval (Duvernay), Québec
695 000 $-
Détails
-
Carte
-
Données démographiques
-
Vue de la rue
-
Itinéraire
-
Publicité
Remarques :
Laval -- Duplex historique offrant un revenu locatif stable Charmant duplex (vers 1870) alliant cachet et rendement. Les deux logements sont présentement loués, générant un revenu annuel d'environ 56 040 $. La propriété dispose de deux entrées indépendantes et se situe sur un grand terrain de style campagne sur le rang du Bas-Saint-François, tout en demeurant à proximité des principales routes et des services. Une belle occasion d'acquérir une parcelle d'histoire de Laval tout en bénéficiant d'un investissement clé en main et fiable. Vente sans garantie légale de qualité, aux risques et périls de l'acheteur.
Laval -- Duplex historique (vers 1870) offrant un revenu locatif stable. Les deux logements sont actuellement loués, générant un revenu annuel d'environ 56 040 $. La propriété dispose de deux entrées indépendantes et est située sur un terrain privé de style campagne. Sur le rang du Bas-Saint-François, elle offre un environnement calme tout en restant à proximité des routes principales et des services.
Une occasion intéressante d'acquérir une parcelle d'histoire de Laval tout en bénéficiant d'un revenu fiable.
Vente sans garantie légale de qualité, aux risques et périls de l'acheteur.
Inclusions: Tous les biens appartenant au Vendeur et utilisés pour le bon fonctionnement des logements.
Exclusions : Effets personnels des locataires et tout bien appartenant aux locataires.
Particularités du bâtiment :
- Style: Duplex
- Dimensions : 25.6 x 10.9 METRE
- Approvisionnement en eau: Municipalité
- Système d'égouts: Municipalité
Revenus bruts potentiels :
- Résidentiels : 56 040 $
Taxes:
- Taxes municipales: 1 914 $
- Taxe scolaire: 150 $
- Taxes annuelles totales: 2 064 $
Property Assessemnt:
- Évaluation du terrain: 128 600 $
- Évaluation de l'immeuble: 80 700 $
- Évaluation totale: 209 300 $
Caractéristiques :
- Bâti en: 1870
- Chambres : 5
- Dimensions du terrain : 10223.00 Pieds carrés
- Irregular: Oui
- Largeur du terrain en façade : 29.31 Mètre
- Profondeur du terrain : 36.52 Mètre
- Salle(s) de bains : 2
- Zonage: RESI
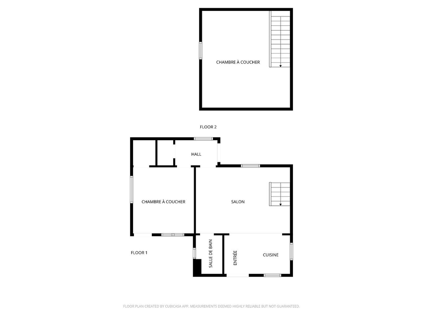
Unités à revenu :
Unité 1
- Pièces 10
- Chambres 5
- Salles de bain 2
Détails des pièces :
- Cuisine Rez-de-chaussée 4.11 m x 2.36 m 13.6 p x 7.9 p Plancher : Bois
- Salle à dîner Rez-de-chaussée 4.75 m x 2.34 m 15.7 p x 7.8 p Plancher : Bois
- Chambre Rez-de-chaussée 3.78 m x 3.25 m 12.5 p x 10.8 p Plancher : Bois
- Salle de bains Rez-de-chaussée 3.51 m x 2.57 m 11.6 p x 8.5 p Plancher : Céramique
- Autre Salle de sport Rez-de-chaussée 4.37 m x 3.96 m 14.4 p x 13.0 p Plancher : Céramique
- Chambre principale Rez-de-chaussée 3.63 m x 3.45 m 11.11 p x 11.4 p Plancher : Bois
- Chambre 2e niveau 4.93 m x 3.78 m 16.2 p x 12.5 p Plancher : Bois
- Chambre 2e niveau 5.00 m x 3.84 m 16.5 p x 12.7 p Plancher : Bois
- Chambre 2e niveau 3.78 m x 2.72 m 12.5 p x 8.11 p Plancher : Bois
- Salle de bains 2e niveau 2.82 m x 1.75 m 9.3 p x 5.9 p Plancher : Céramique
- Salon 2e niveau 3.78 m x 3.02 m 12.5 p x 9.11 p Plancher : Bois
Unité 2
- Pièces 4
- Chambres 1
- Salles de bain 1
Détails des pièces :
- Hall d'entrée Rez-de-chaussée 2.24 m x 1.24 m 7.4 p x 4.1 p Plancher : Bois
- Cuisine Rez-de-chaussée 2.31 m x 2.01 m 7.7 p x 6.7 p Plancher : Bois
- Salon Rez-de-chaussée 4.39 m x 3.66 m 14.5 p x 12.0 p Plancher : Bois
- Salle de bains Rez-de-chaussée 2.11 m x 1.68 m 6.11 p x 5.6 p Plancher : Céramique
- Salle familiale Rez-de-chaussée 3.94 m x 3.78 m 12.11 p x 12.5 p Plancher : Céramique
- Chambre 2e niveau 5.46 m x 4.52 m 17.11 p x 14.10 p Plancher : Bois
Convertir la mesure en :
Données fournies par : Centris - 600 Ch Du Golf, Ile -Des -Soeurs, Québec H3E 1A8
Nous croyons que tous les renseignements affichés sont exacts, mais nous ne le garantissons pas; les renseignements devraient être vérifiés de façon indépendante. Aucune garantie ou représentation de quelque nature que ce soit n’est offerte. Droits© 2021 Tous les droits sont réservés.
























































