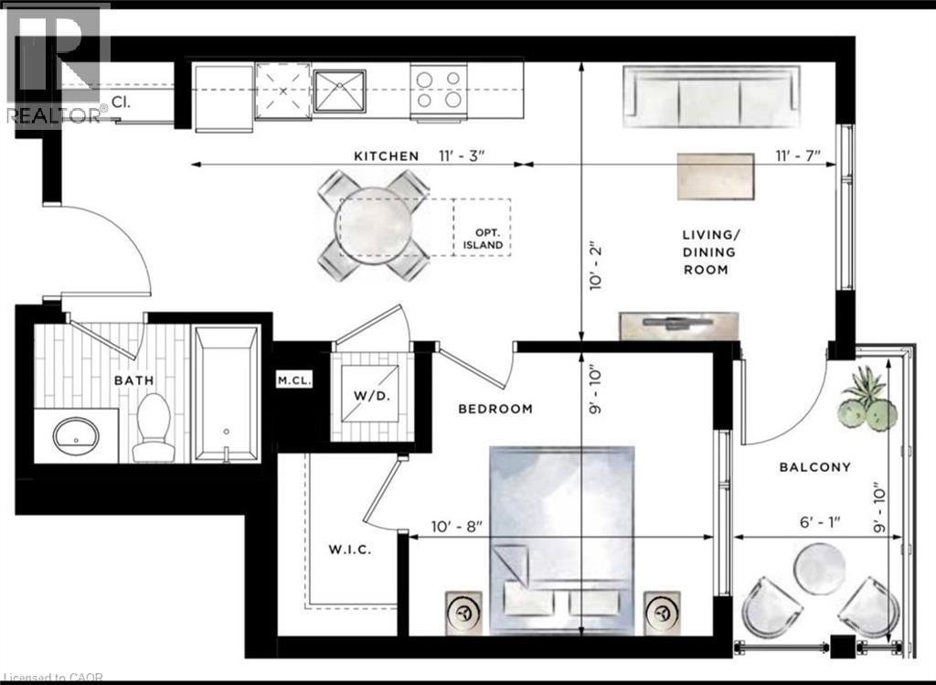
à Louer à Lincoln, Waterloo, Ontario
1 850.00 $ /mois1 Chambres
1 Salle de bain
-
Détails
-
Carte
-
Données démographiques
-
Vue de la rue
-
Itinéraire
-
Publicité







