Copropriété À vendre à Bayview Village, Toronto, Ontario
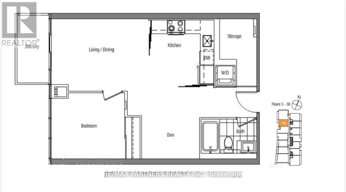
559 900 $ ÉvaluationExpressMC:1+1 Chambres
1 Salle de bain
-
Détails
-
Carte
-
Données démographiques
-
Vue de la rue
-
Itinéraire
-
Publicité




























