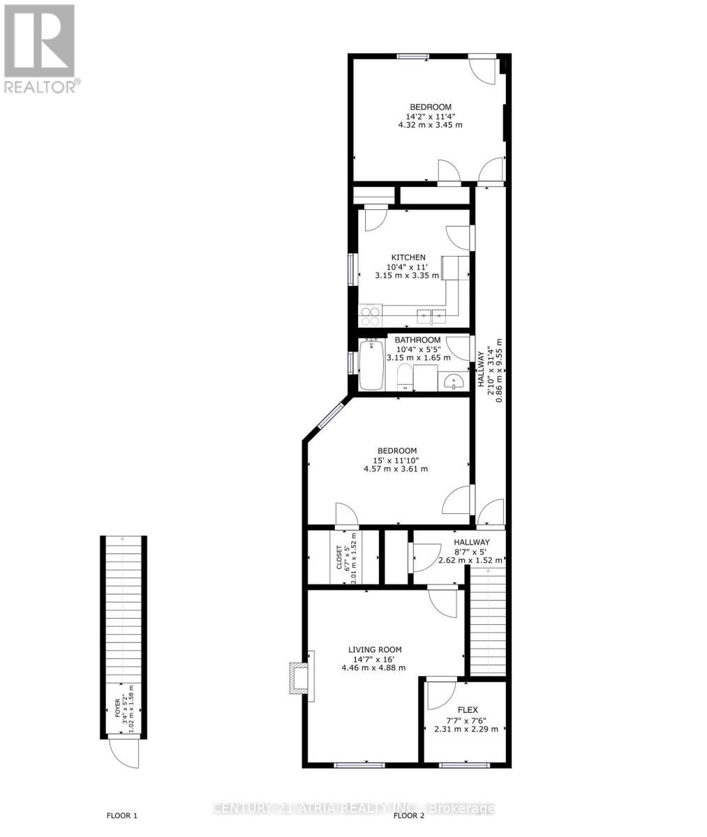
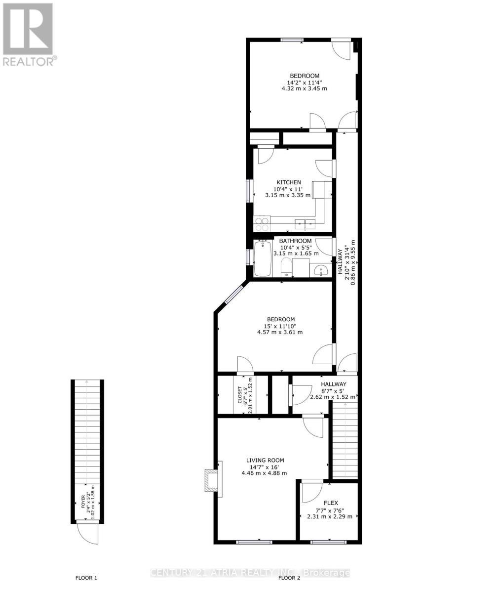
Commercial À vendre à Toronto, Ontario
1 249 900 $None Chambres
-
Détails
-
Carte
-
Données démographiques
-
Vue de la rue
-
Itinéraire
-
Publicité






















