Copropriété À vendre à Cityplace, Toronto, Ontario
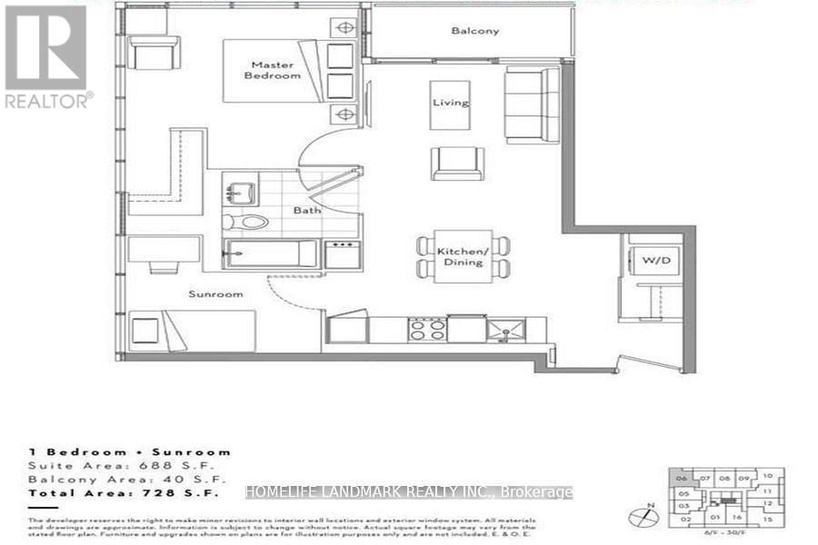
599 000 $ ÉvaluationExpressMC:1+1 Chambres
1 Salle de bain
-
Détails
-
Carte
-
Données démographiques
-
Vue de la rue
-
Itinéraire
-
Publicité








