à Louer à Junction Triangle, Toronto, Ontario
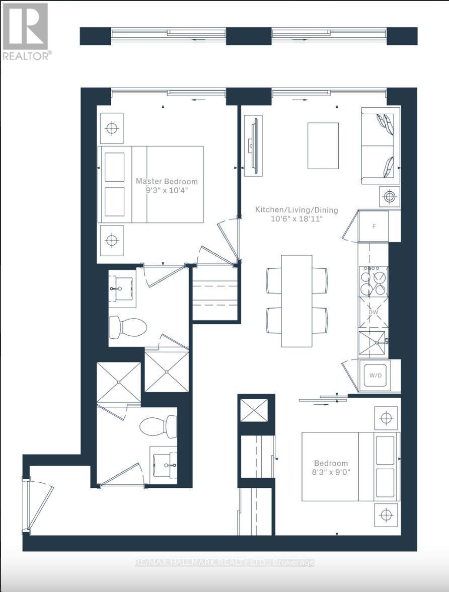
2 495.00 $ /mois2 Chambres
2 Salles de bain
-
Détails
-
Carte
-
Données démographiques
-
Vue de la rue
-
Itinéraire
-
Publicité
MULTIMEDIA






































