Maison À vendre à Tiny, Ontario
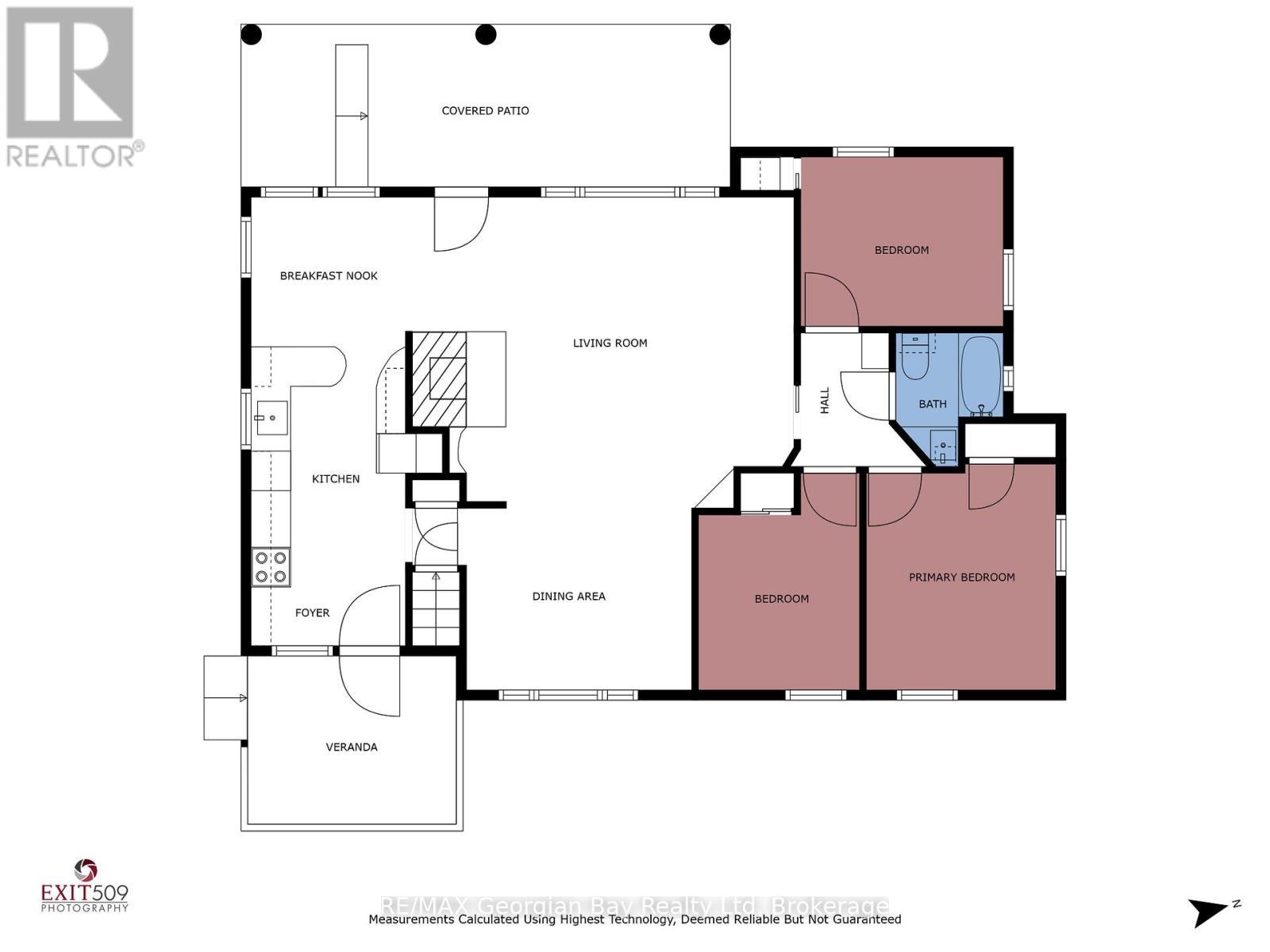
2 600 000 $ ÉvaluationExpressMC:3 Chambres
1 Salle de bain
-
Détails
-
Carte
-
Données démographiques
-
Vue de la rue
-
Itinéraire
-
Publicité



























