Maison À vendre à Tiny, Ontario
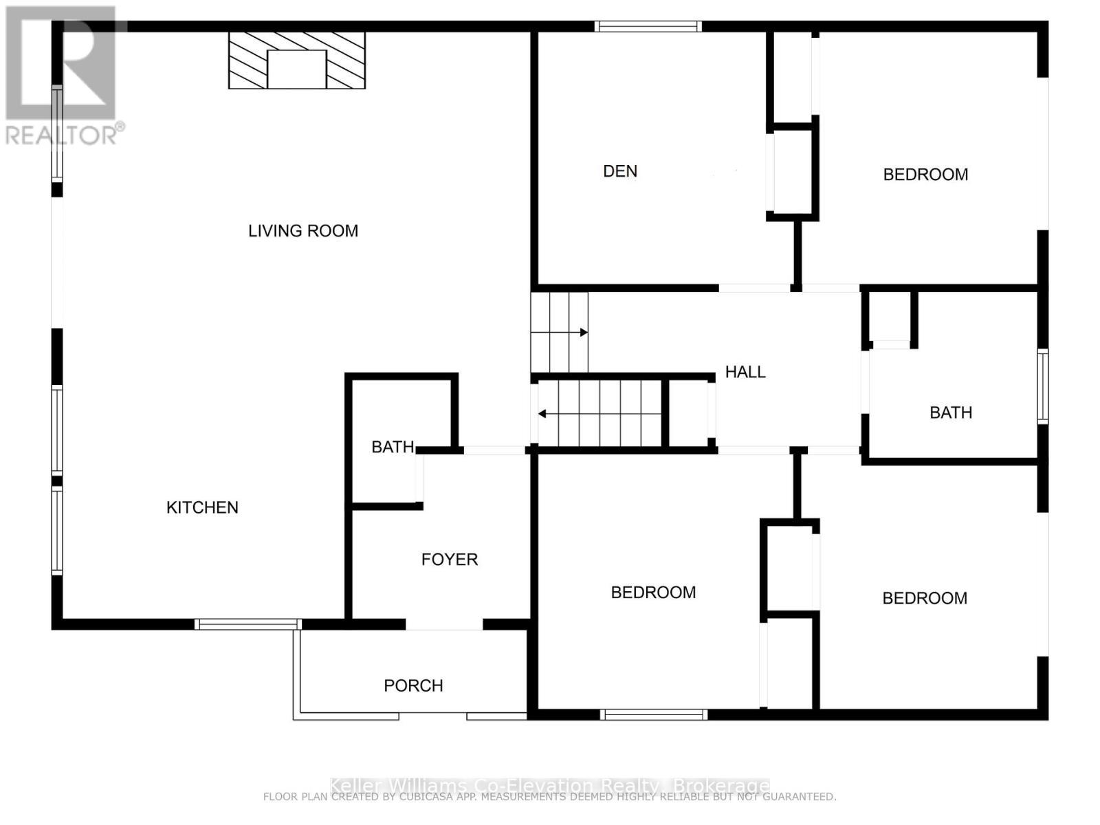
1 649 900 $ ÉvaluationExpressMC: Non disponible3+2 Chambres
3 Salles de bain
-
Détails
-
Carte
-
Données démographiques
-
Vue de la rue
-
Itinéraire
-
Publicité















































