Maison À vendre à Port Robinson West - St. John's - Rural, Thorold, Ontario
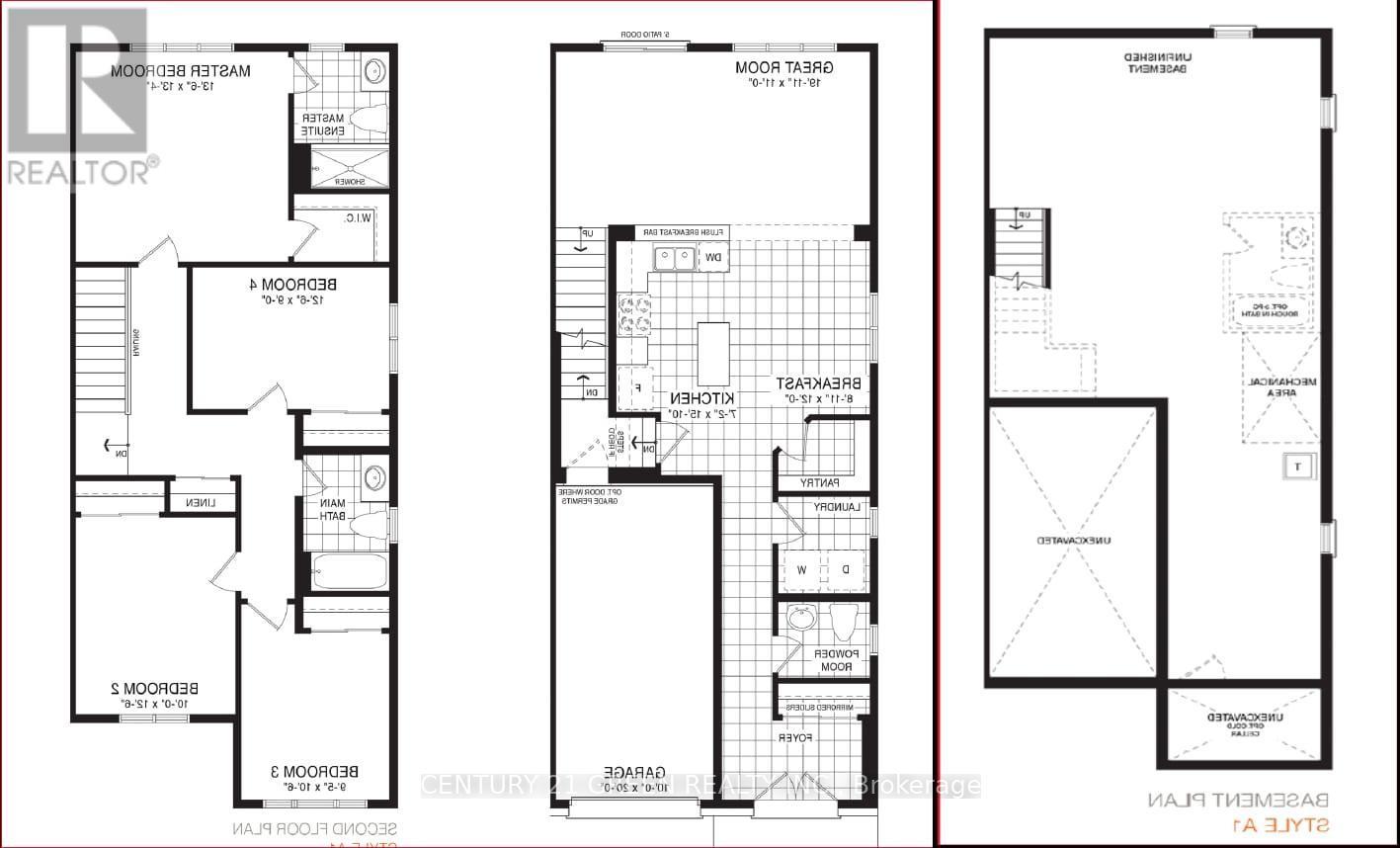
709 000 $ ÉvaluationExpressMC: Non disponible4 Chambres
3 Salles de bain
-
Détails
-
Carte
-
Données démographiques
-
Vue de la rue
-
Itinéraire
-
Publicité















































