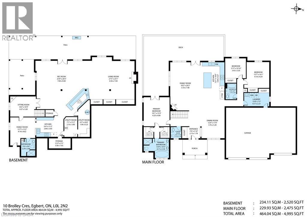
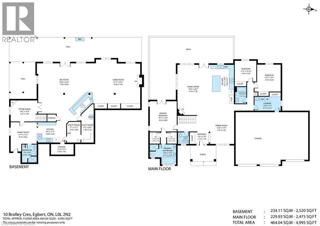
Maison À vendre à Thornton, Ontario
2 099 999 $ ÉvaluationExpressMC: Non disponible3 Chambres
4 Salles de bain
-
Détails
-
Carte
-
Données démographiques
-
Vue de la rue
-
Itinéraire
-
Publicité
MULTIMEDIA

















































