Maison À vendre à Springwater, Ontario
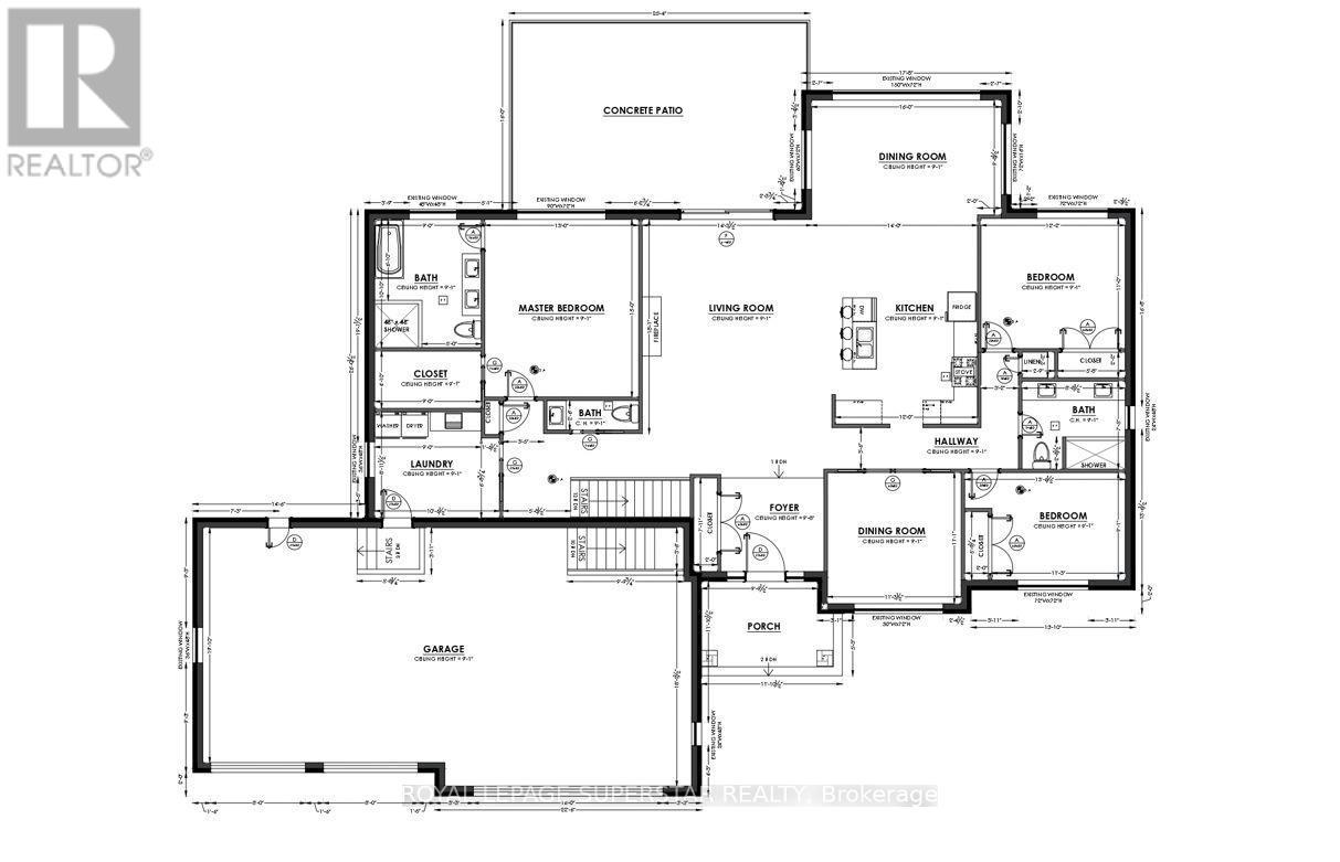
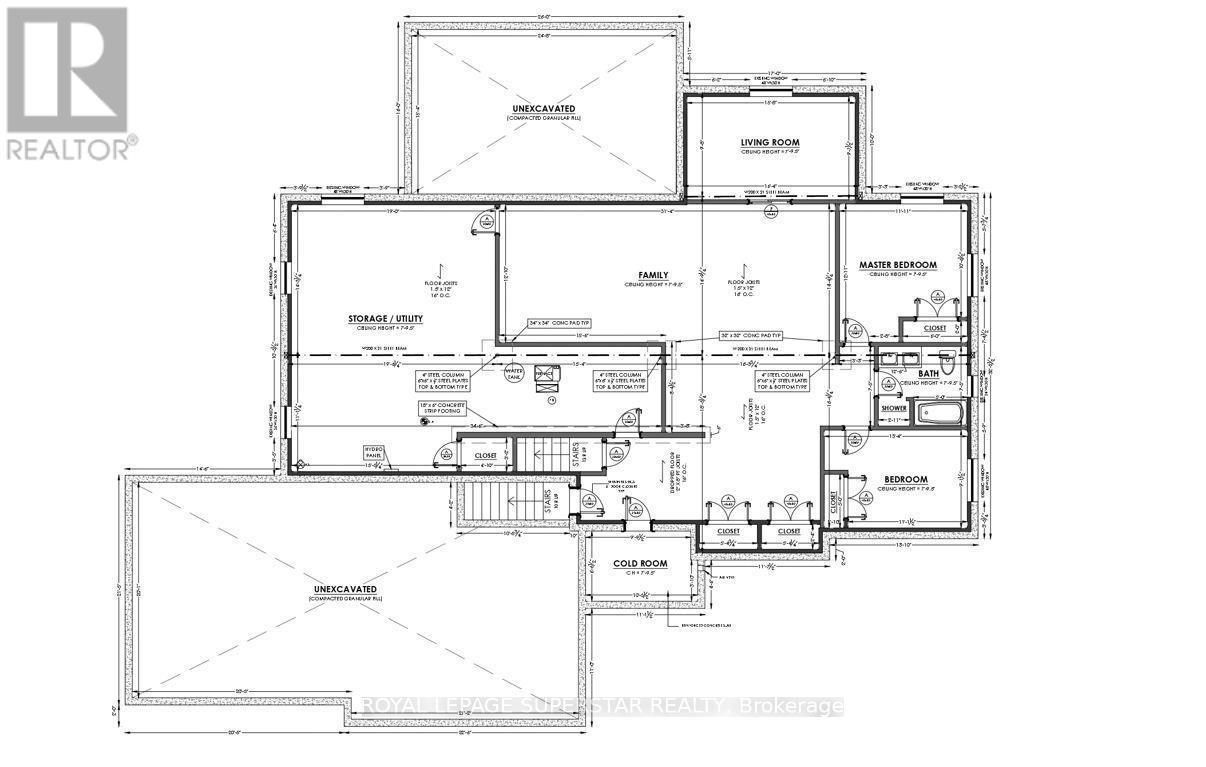
1 839 000 $ ÉvaluationExpressMC:3+2 Chambres
4 Salles de bain
-
Détails
-
Carte
-
Données démographiques
-
Vue de la rue
-
Itinéraire
-
Publicité
MULTIMEDIA










































