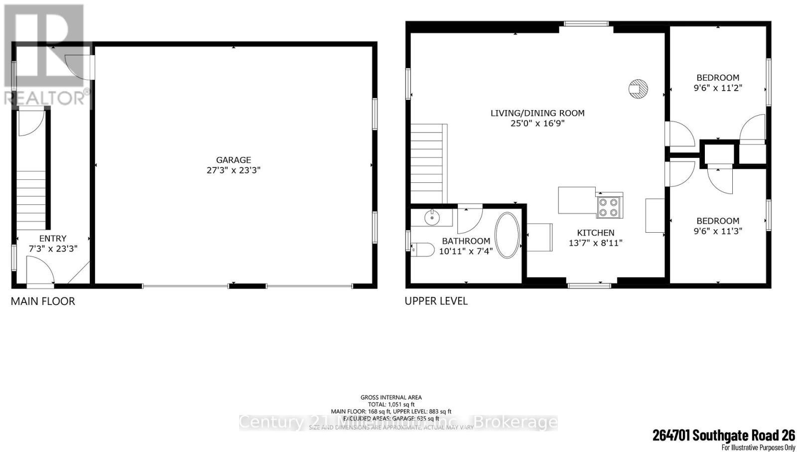
Maison À vendre à Southgate, Ontario
1 049 000 $ ÉvaluationExpressMC:2 Chambres
1 Salle de bain
-
Détails
-
Carte
-
Données démographiques
-
Vue de la rue
-
Itinéraire
-
Publicité


































