Maison À vendre à Sarnia, Ontario
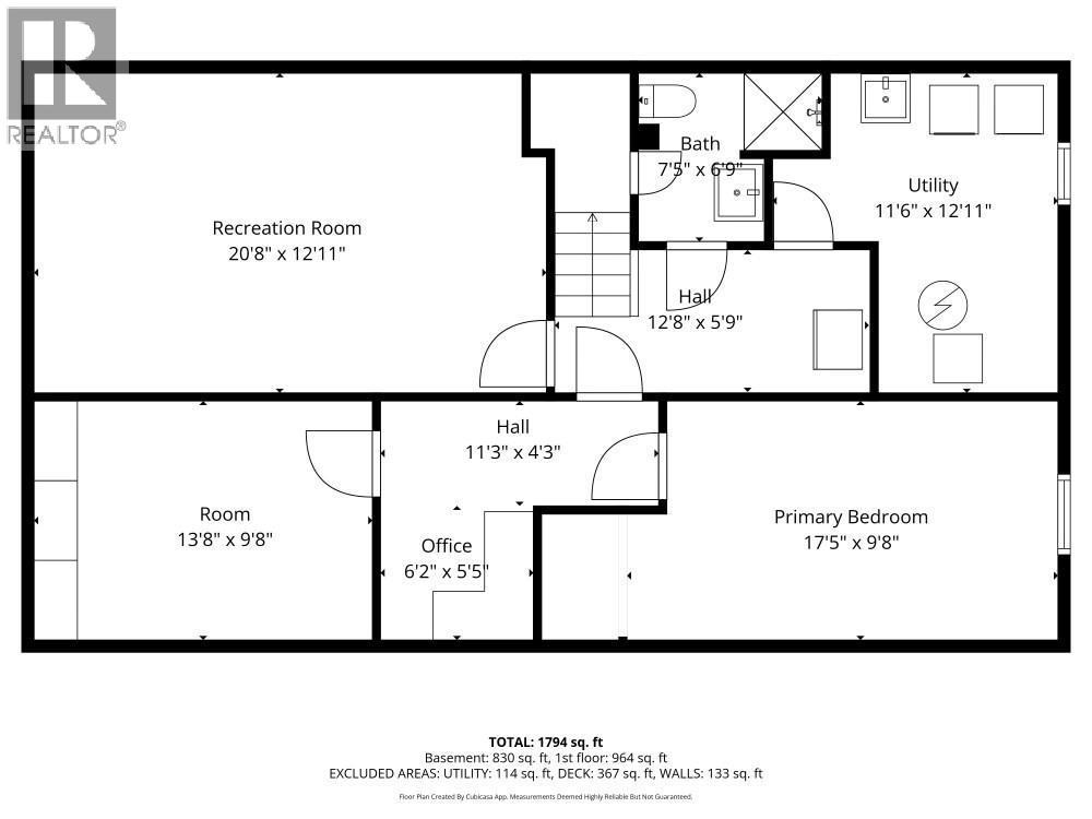
524 900 $ ÉvaluationExpressMC:3+1 Chambres
2 Salles de bain
-
Détails
-
Carte
-
Données démographiques
-
Vue de la rue
-
Itinéraire
-
Publicité









































