Maison À vendre à Sarnia, Ontario
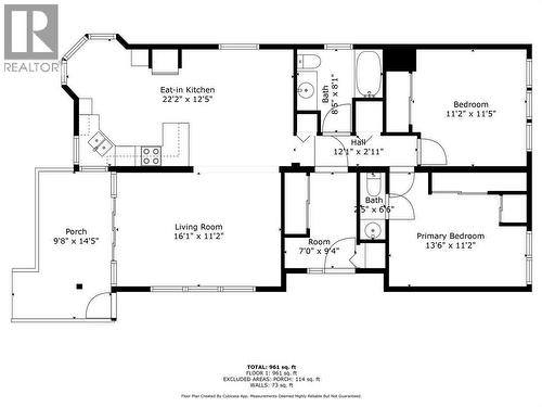
199 900 $ ÉvaluationExpressMC: Non disponible2 Chambres
2 Salles de bain
-
Détails
-
Carte
-
Données démographiques
-
Vue de la rue
-
Itinéraire
-
Publicité


























