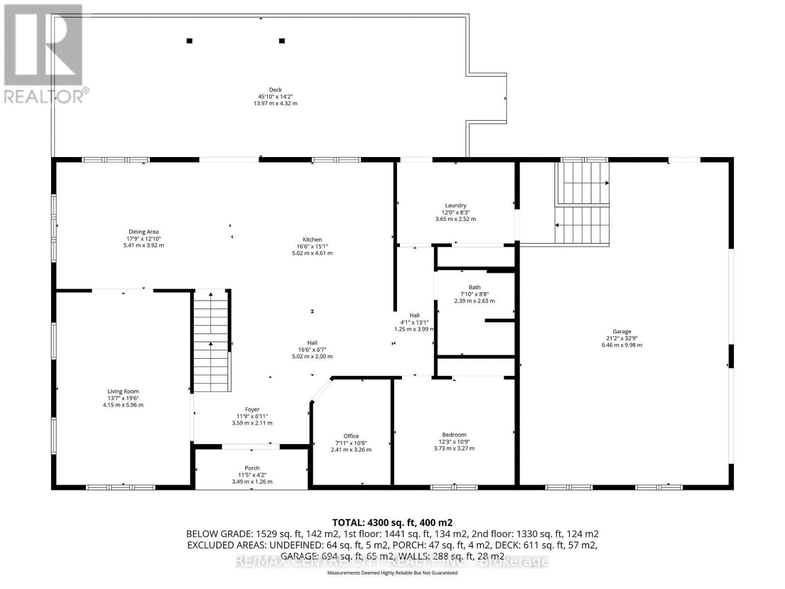
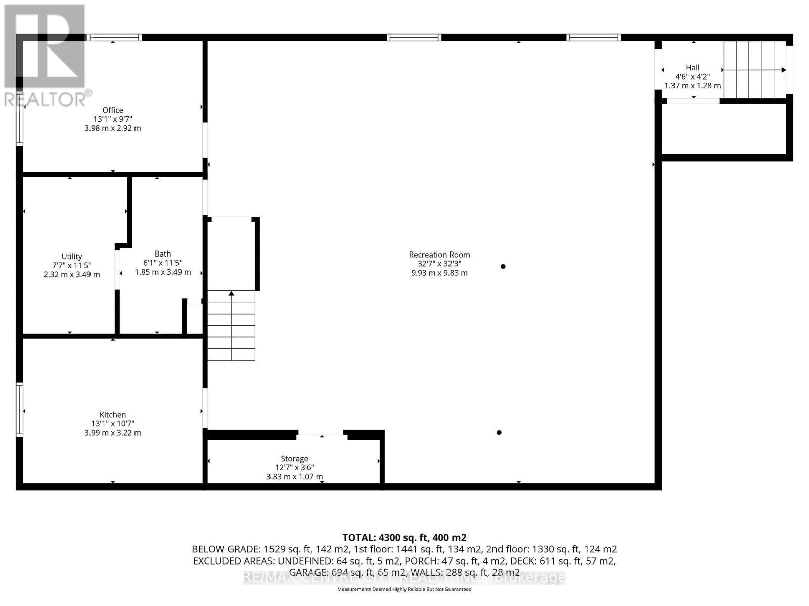
Maison À vendre à Norfolk, Ontario
850 000 $ ÉvaluationExpressMC: Non disponible6 Chambres
4 Salles de bain
-
Détails
-
Carte
-
Données démographiques
-
Vue de la rue
-
Itinéraire
-
Publicité





































