Copropriété À vendre à Chippawa - Rural, Niagara Falls (Chippawa), Ontario
649 900 $ ÉvaluationExpressMC: Non disponible2 Chambres
2 Salles de bain
-
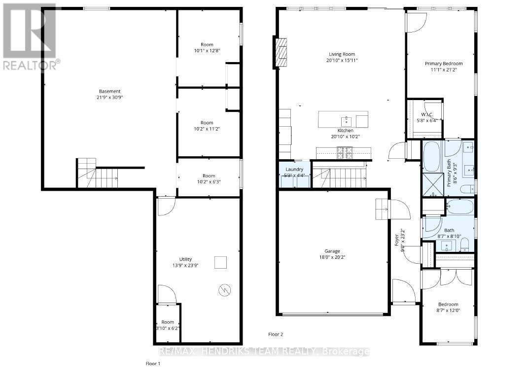
Détails
-
Carte
-
Données démographiques
-
Vue de la rue
-
Itinéraire
-
Publicité

































