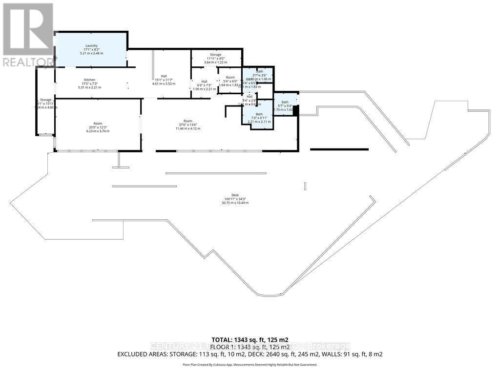
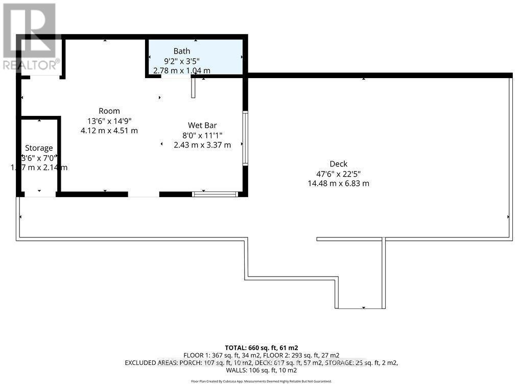
Terrain À vendre à Muskoka Lakes, Ontario
4 250 000 $None Chambres
-
Détails
-
Carte
-
Données démographiques
-
Vue de la rue
-
Itinéraire
-
Publicité
MULTIMEDIA

















































