Maison À vendre à Cooksville, Mississauga, Ontario
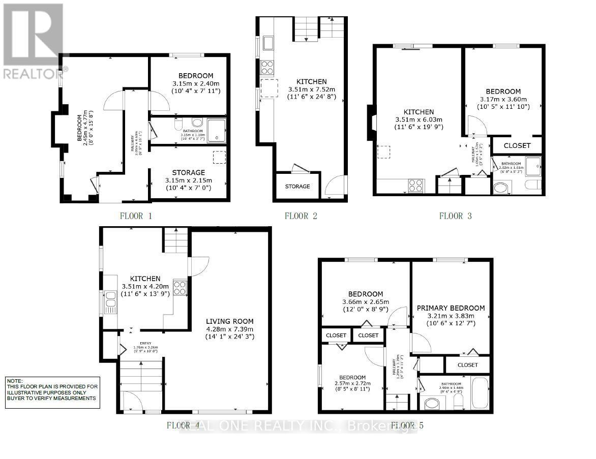
890 000 $ ÉvaluationExpressMC: Non disponible4+2 Chambres
3 Salles de bain
-
Détails
-
Carte
-
Données démographiques
-
Vue de la rue
-
Itinéraire
-
Publicité
















































