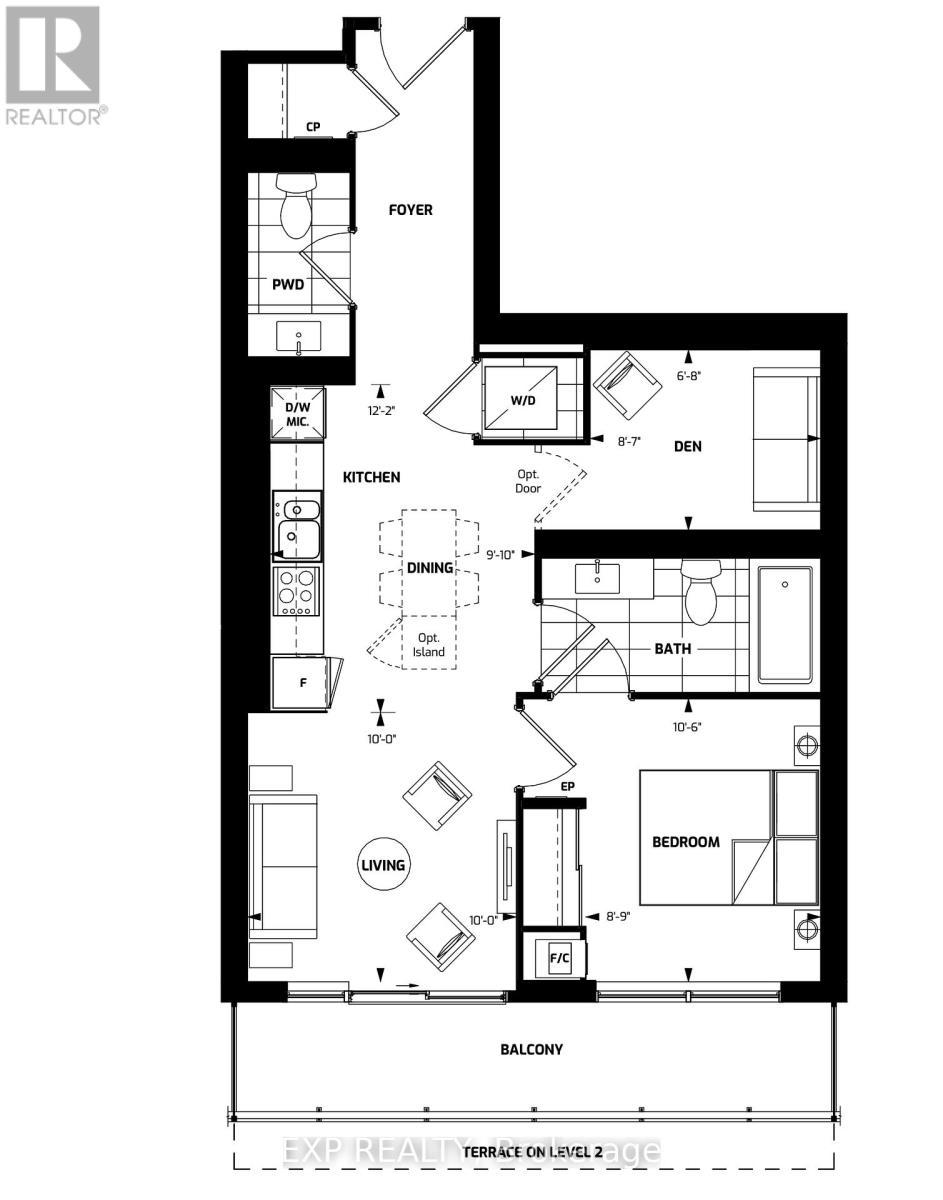
à Louer à Unionville, Markham, Ontario
2 500.00 $ /mois1+1 Chambres
2 Salles de bain
-
Détails
-
Carte
-
Données démographiques
-
Vue de la rue
-
Itinéraire
-
Publicité
MULTIMEDIA















