Maison en rangée À vendre à Unionville, Markham, Ontario
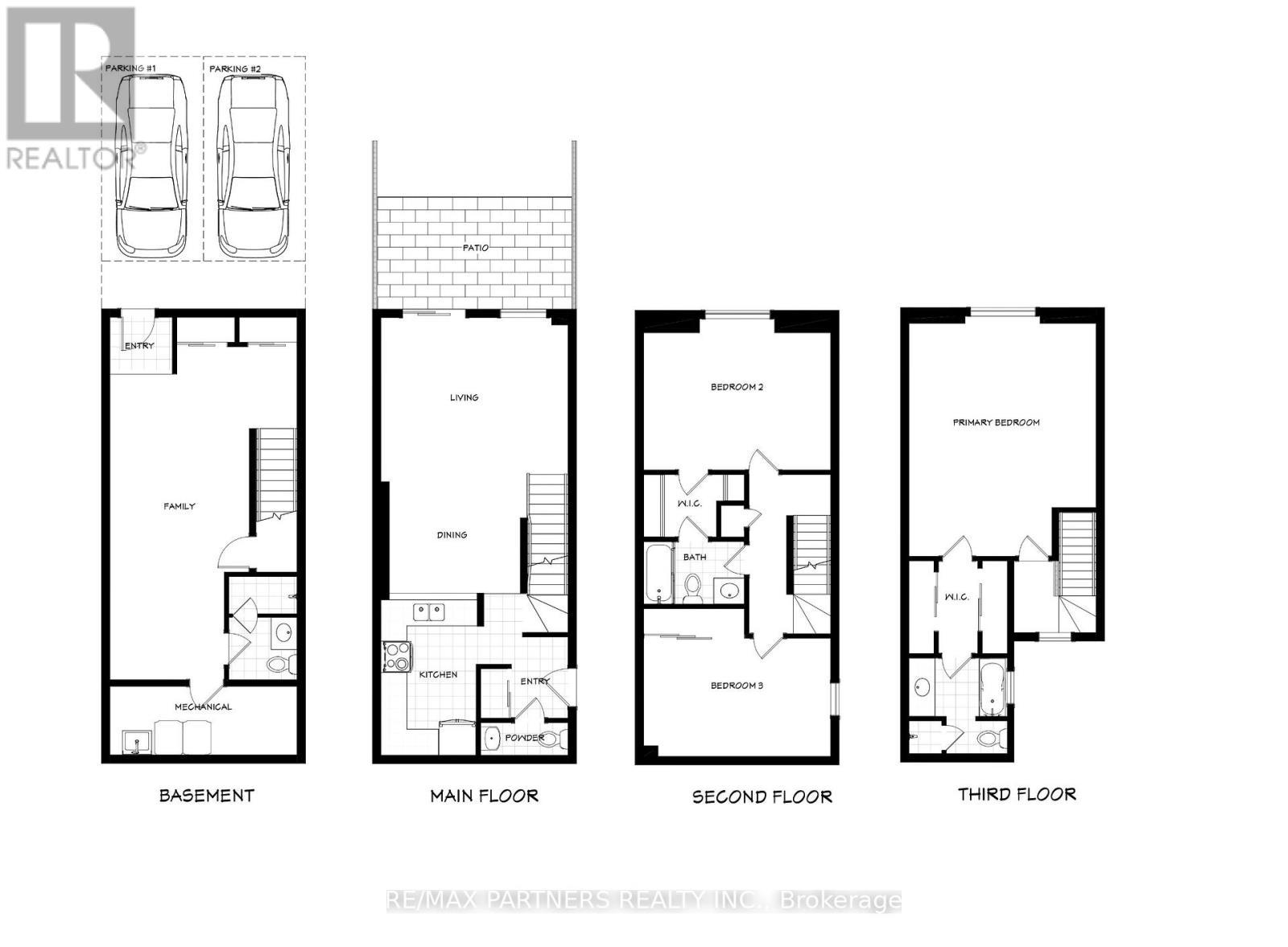
799 000 $ ÉvaluationExpressMC:3 Chambres
4 Salles de bain
-
Détails
-
Carte
-
Données démographiques
-
Vue de la rue
-
Itinéraire
-
Publicité































