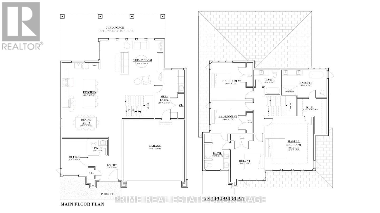
Maison À vendre à Central London, London South (South V), Ontario
1 490 950 $ ÉvaluationExpressMC: Non disponible4 Chambres
4 Salles de bain
-
Détails
-
Carte
-
Données démographiques
-
Vue de la rue
-
Itinéraire
-
Publicité
Ventes/Historique de prix
Se connecter ou créer un compte pour voir les inscriptions vendues et les historiques d'inscriptions























