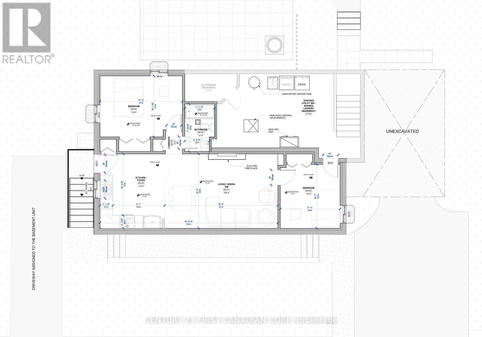
Maison À louer à Stoneybrook, London North (North G), Ontario
1 650.00 $ /mois2 Chambres
1 Salle de bain
-
Détails
-
Carte
-
Données démographiques
-
Vue de la rue
-
Itinéraire
-
Publicité




























