Maison À vendre à Eastwood, Kitchener, Ontario
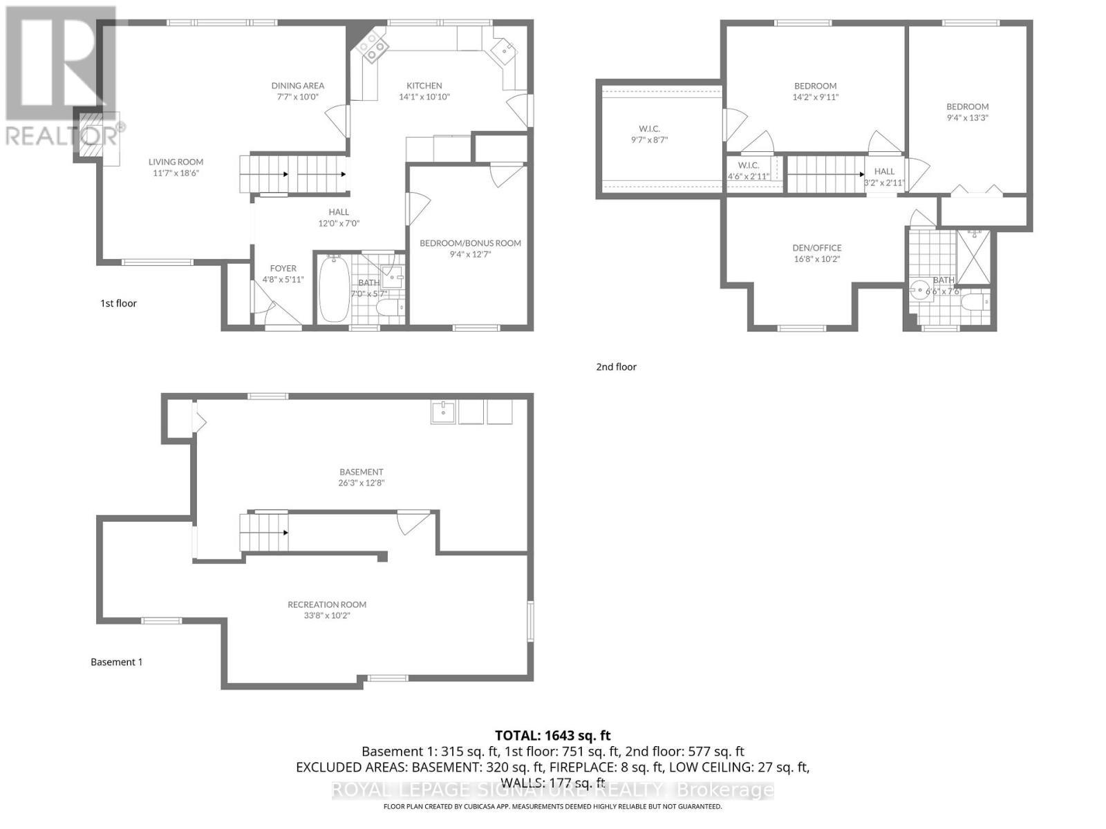
789 000 $ ÉvaluationExpressMC:3 Chambres
2 Salles de bain
-
Détails
-
Carte
-
Données démographiques
-
Vue de la rue
-
Itinéraire
-
Publicité
MULTIMEDIA







































