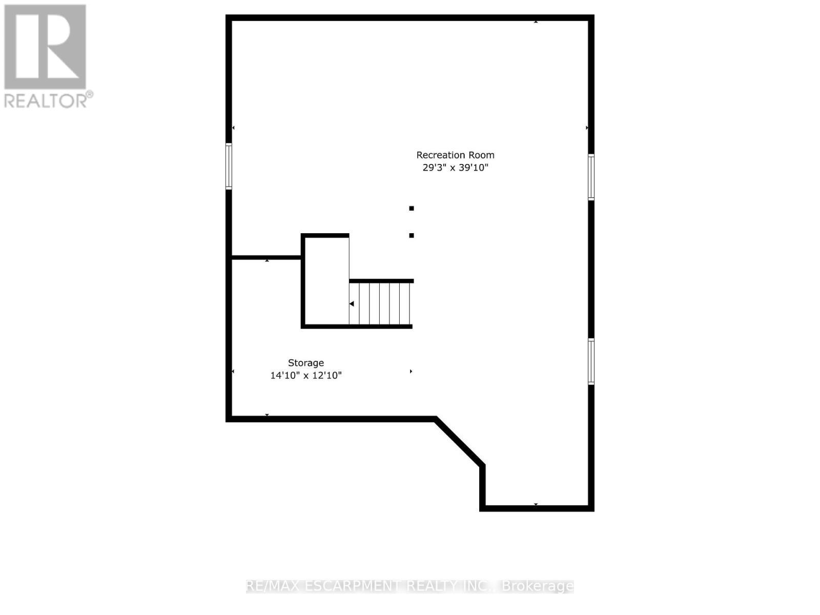
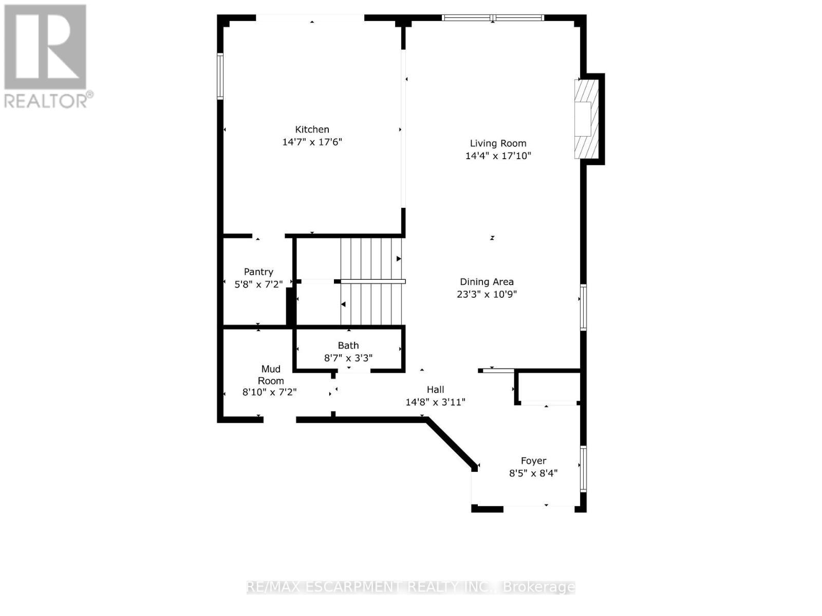
Maison À vendre à Hamilton, Ontario
1 124 900 $ ÉvaluationExpressMC:5 Chambres
3 Salles de bain
-
Détails
-
Carte
-
Données démographiques
-
Vue de la rue
-
Itinéraire
-
Publicité
MULTIMEDIA















































