Maison À vendre à Shaver, Hamilton, Ontario
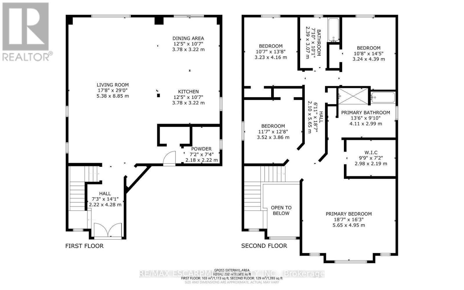
1 499 999 $ ÉvaluationExpressMC: Non disponible4 Chambres
2 Salles de bain
-
Détails
-
Carte
-
Données démographiques
-
Vue de la rue
-
Itinéraire
-
Publicité
Ventes/Historique de prix
Se connecter ou créer un compte pour voir les inscriptions vendues et les historiques d'inscriptions























