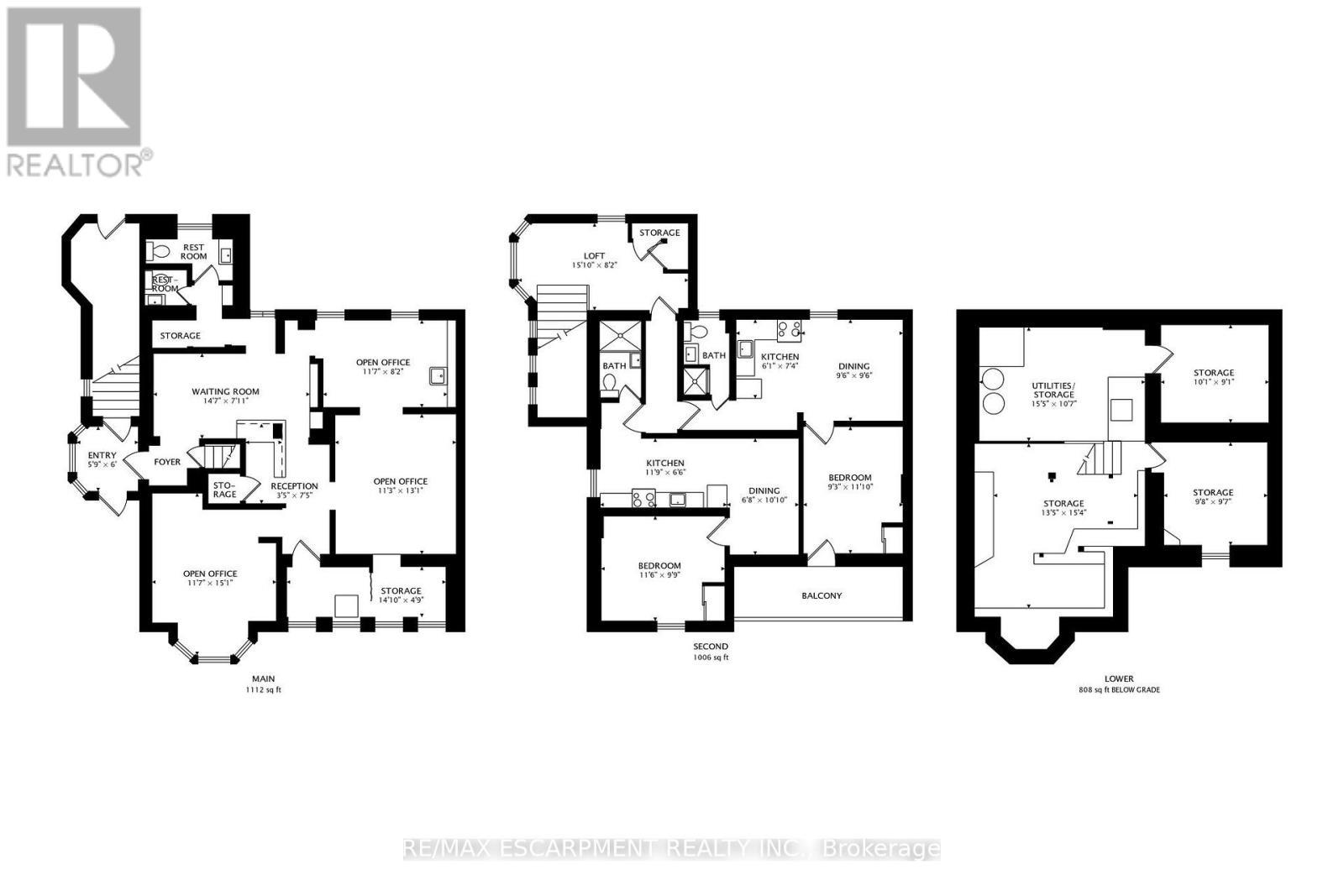
Commercial À vendre à Corktown, Hamilton, Ontario
949 900 $None Chambres
-
Détails
-
Carte
-
Données démographiques
-
Vue de la rue
-
Itinéraire
-
Publicité

















































