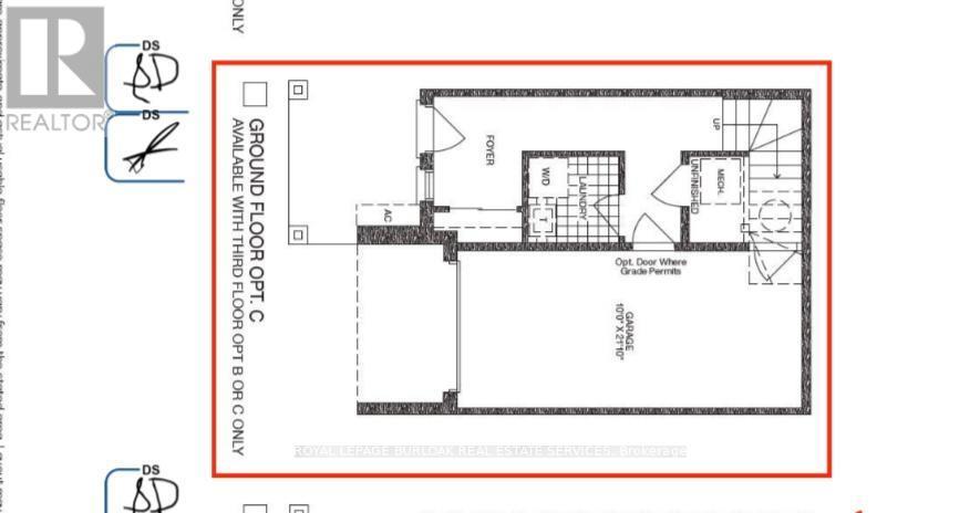
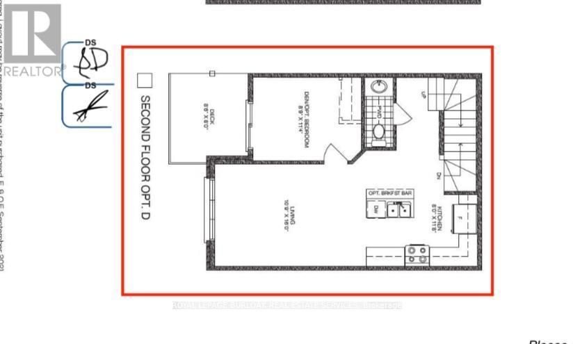
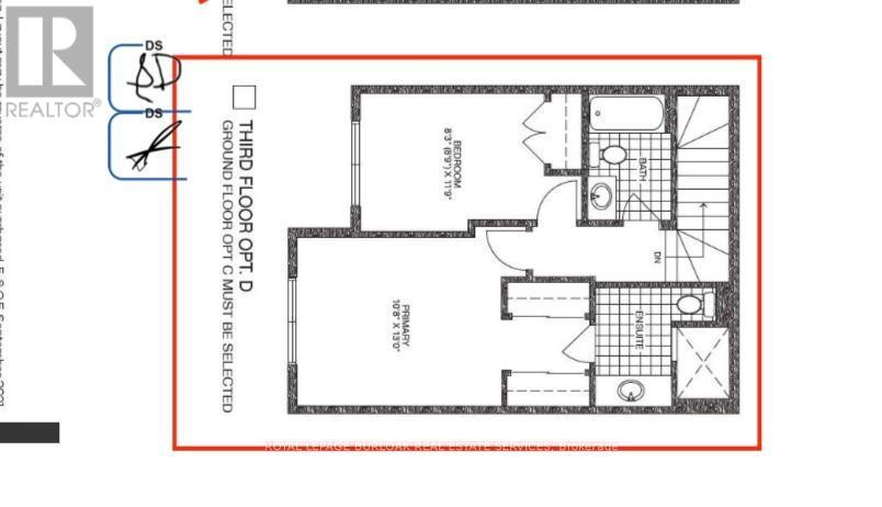
Maison À louer à Industrial, Hamilton, Ontario
2 695.00 $ /mois3 Chambres
3 Salles de bain
-
Détails
-
Carte
-
Données démographiques
-
Vue de la rue
-
Itinéraire
-
Publicité






















