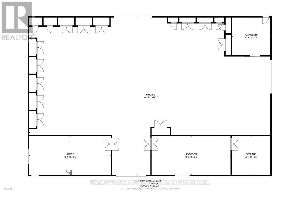
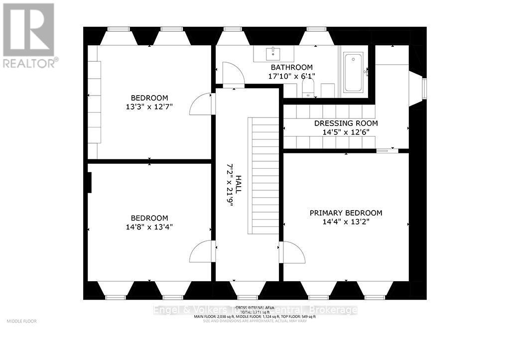
Maison À vendre à Grey Highlands, Ontario
7 750 000 $ ÉvaluationExpressMC: Non disponible5 Chambres
3 Salles de bain
-
Détails
-
Carte
-
Données démographiques
-
Vue de la rue
-
Itinéraire
-
Publicité
MULTIMEDIA

















































