Maison À vendre à Georgian Bay (Gibson), Ontario
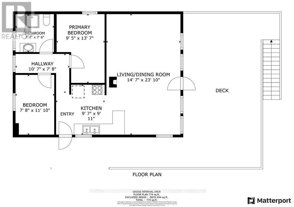
774 000 $ ÉvaluationExpressMC: Non disponible2 Chambres
1 Salle de bain
-
Détails
-
Carte
-
Données démographiques
-
Vue de la rue
-
Itinéraire
-
Publicité
MULTIMEDIA
Ventes/Historique de prix
Se connecter ou créer un compte pour voir les inscriptions vendues et les historiques d'inscriptions




































