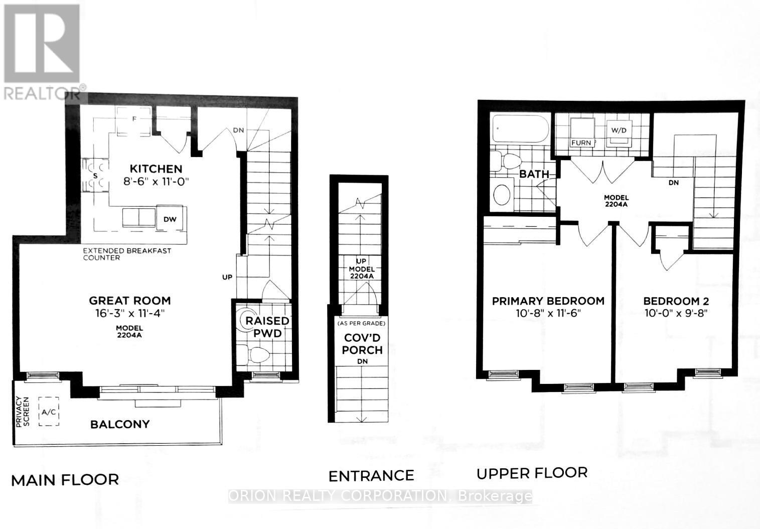
Maison en rangée À louer à Cobourg, Ontario
2 300.00 $ /mois2 Chambres
2 Salles de bain
-
Détails
-
Carte
-
Données démographiques
-
Vue de la rue
-
Itinéraire
-
Publicité


















