Maison À vendre à Chelmsford, Ontario
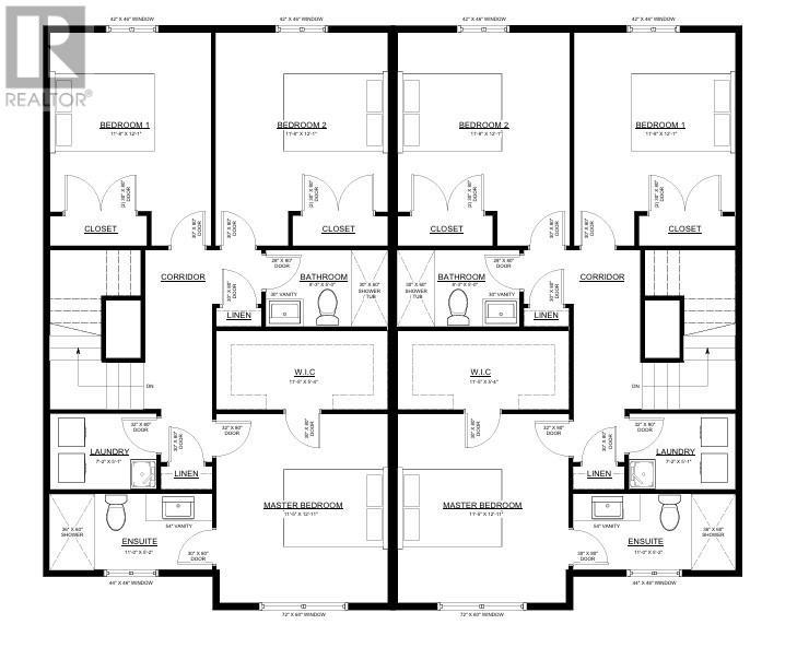
595 900 $ ÉvaluationExpressMC:3 Chambres
3 Salles de bain
-
Détails
-
Carte
-
Données démographiques
-
Vue de la rue
-
Itinéraire
-
Publicité






















