Maison À vendre à Bluewater (Dashwood), Ontario
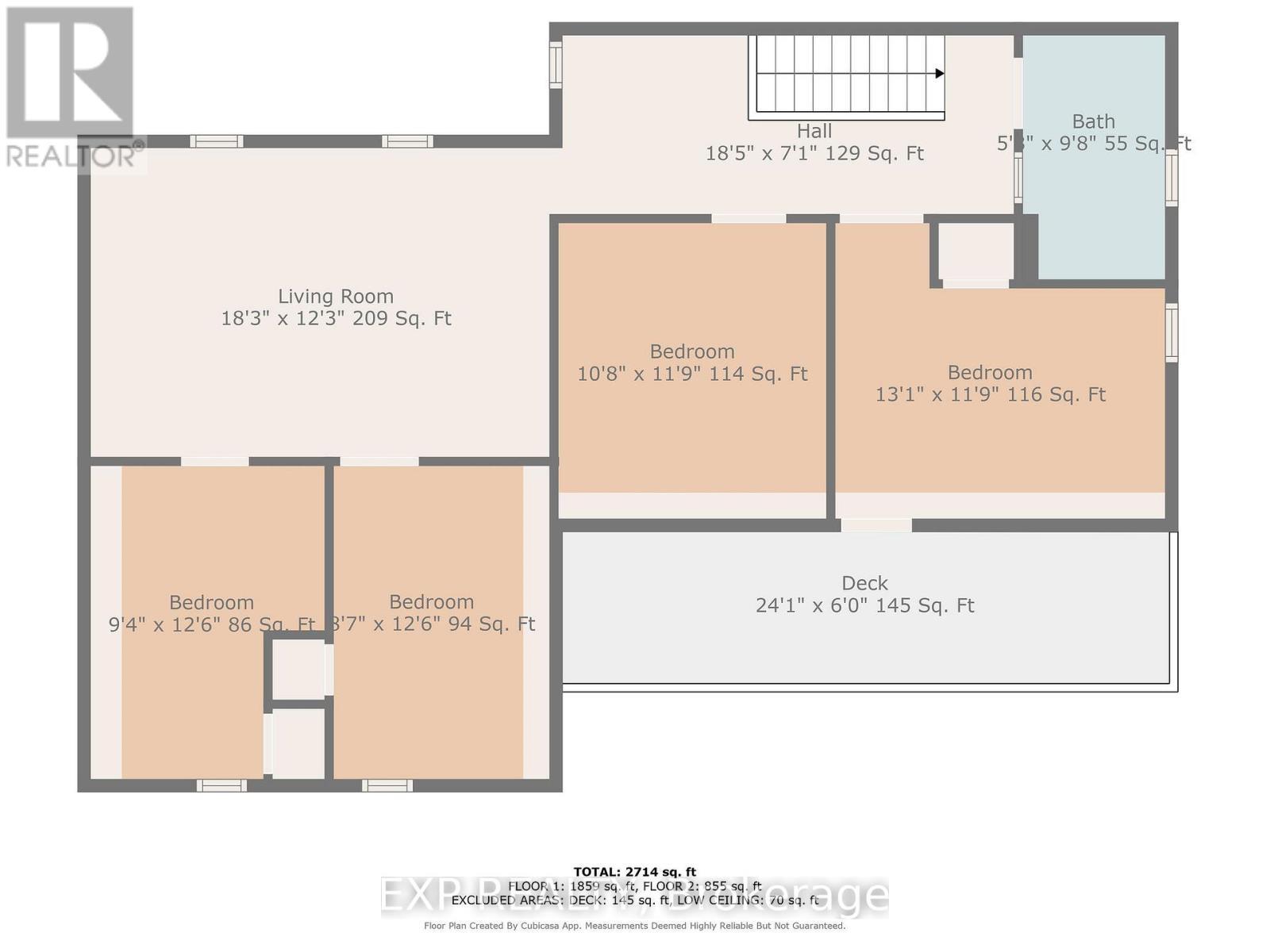
559 000 $ ÉvaluationExpressMC: Non disponible5 Chambres
2 Salles de bain
-
Détails
-
Carte
-
Données démographiques
-
Vue de la rue
-
Itinéraire
-
Publicité










































