Maison À louer à Barrie, Ontario
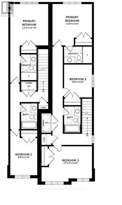
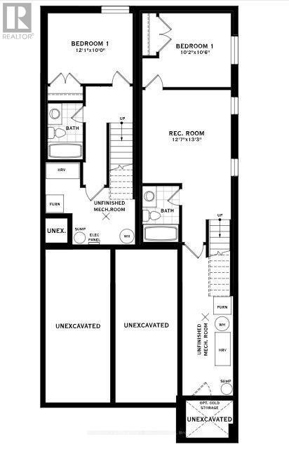
2 800.00 $ /mois3 Chambres
3 Salles de bain
-
Détails
-
Carte
-
Données démographiques
-
Vue de la rue
-
Itinéraire
-
Publicité
MULTIMEDIA














