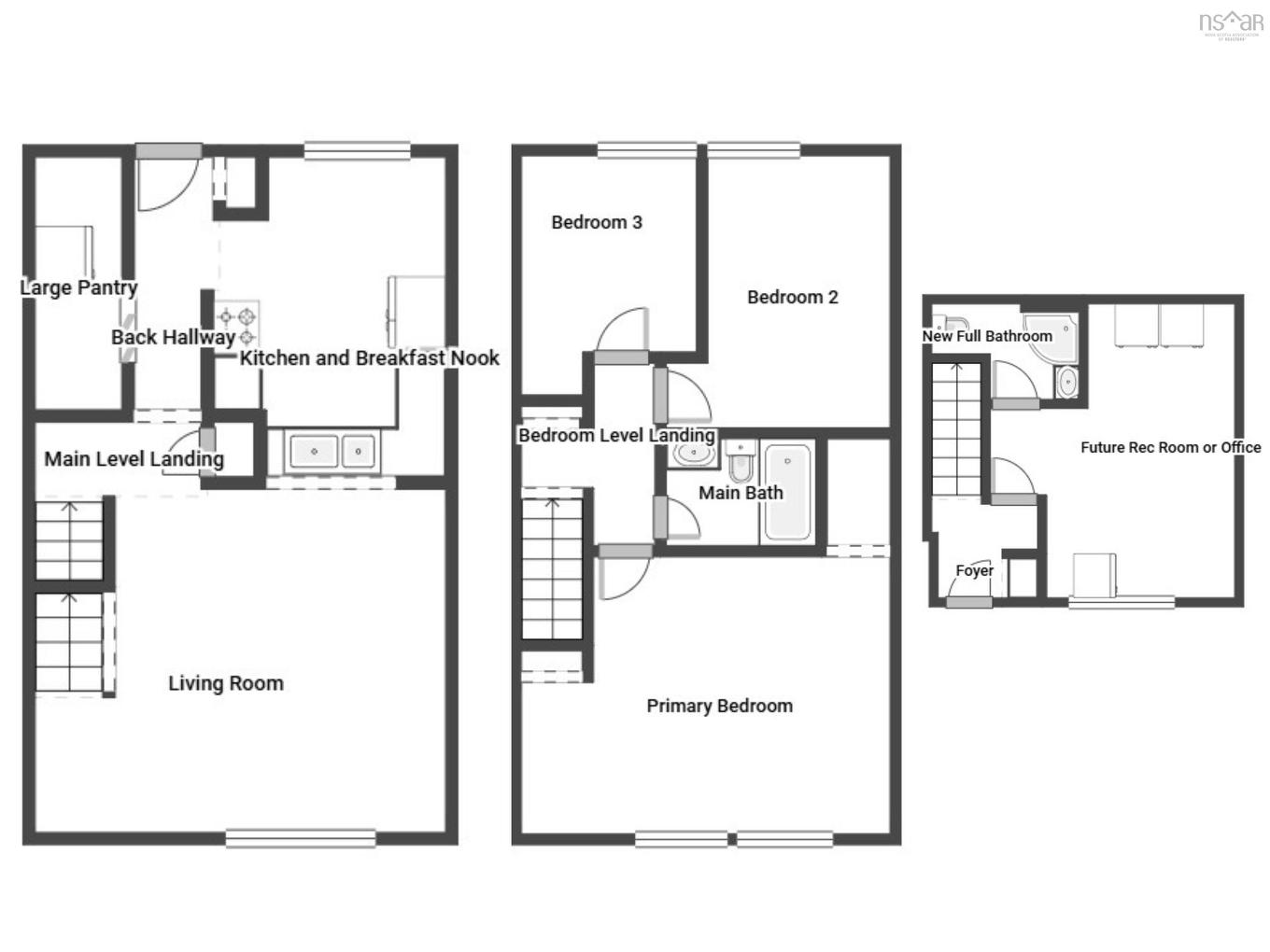
Maison en rangée à Cowie Hill, Halifax, Nouvelle-Écosse
349 900 $ ÉvaluationExpressMC: Non disponible3 Chambres
2 Salles de bain
-
Détails
-
Carte
-
Données démographiques
-
Vue de la rue
-
Itinéraire
-
Publicité
MULTIMEDIA




































