Maison À vendre à Summerland, Colombie-Britannique
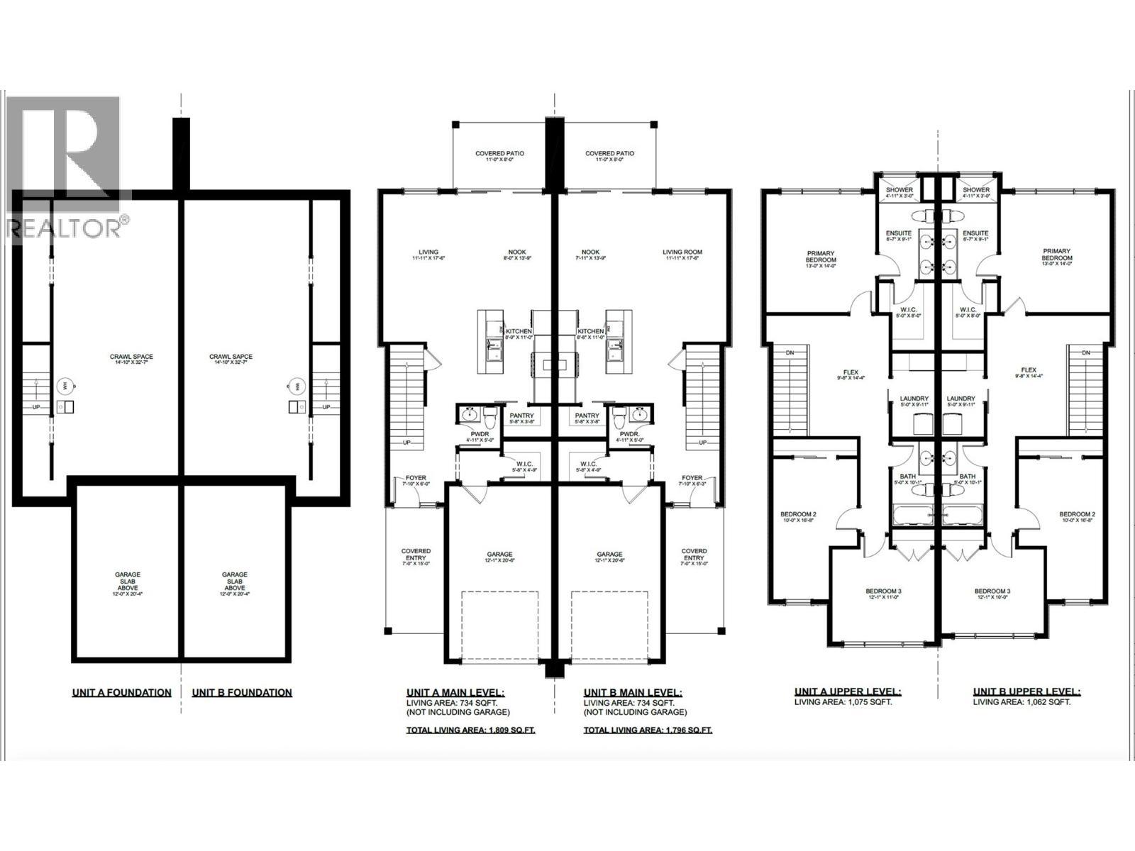
749 900 $ ÉvaluationExpressMC: Non disponible3 Chambres
3 Salles de bain
-
Détails
-
Carte
-
Données démographiques
-
Vue de la rue
-
Itinéraire
-
Publicité




















