Maison À vendre à Scotch Creek, Colombie-Britannique
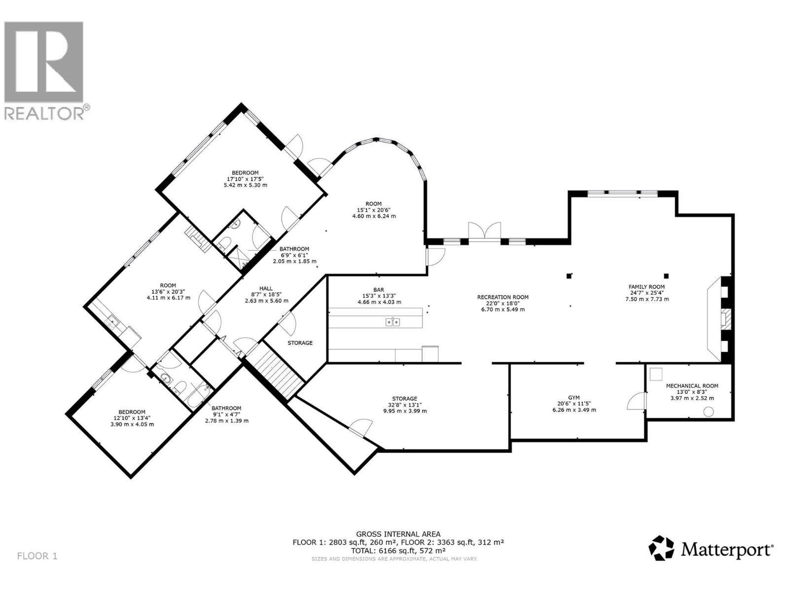
2 950 000 $ ÉvaluationExpressMC: Non disponible5 Chambres
6 Salles de bain
-
Détails
-
Carte
-
Données démographiques
-
Vue de la rue
-
Itinéraire
-
Publicité
















































