Maison À vendre à Salmon Arm, Colombie-Britannique
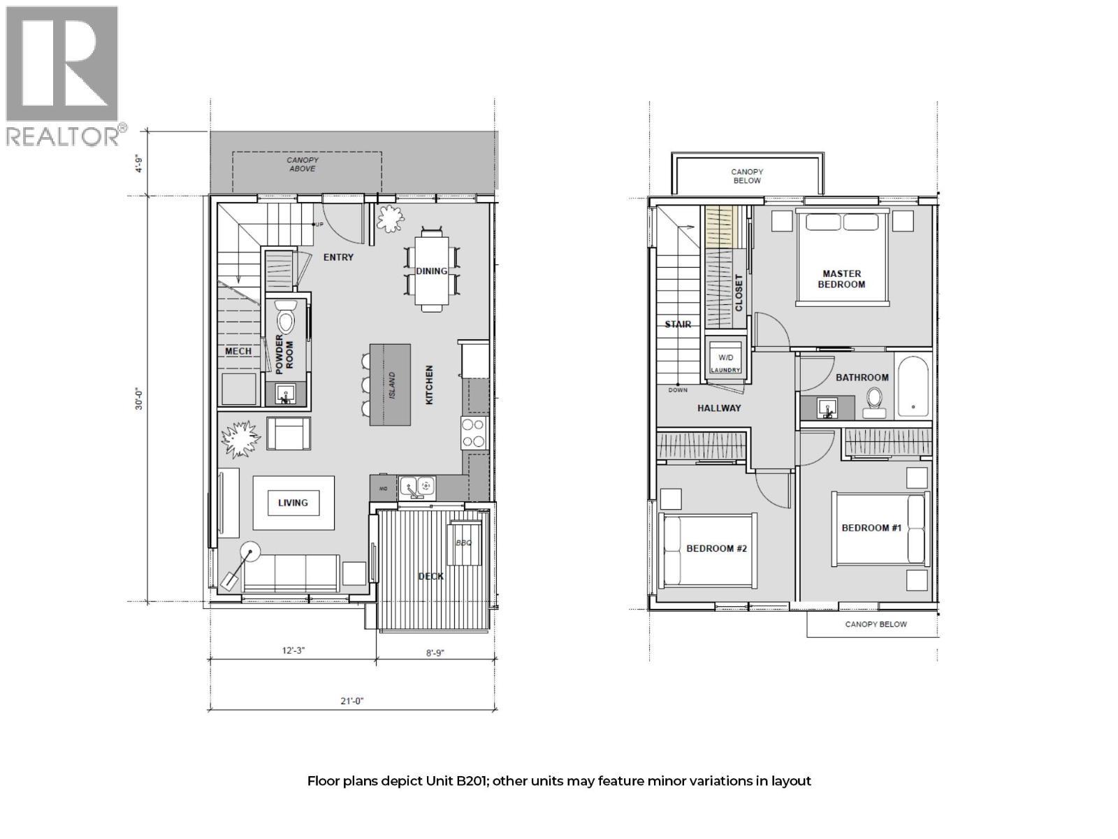
459 000 $ ÉvaluationExpressMC:3 Chambres
2 Salles de bain
-
Détails
-
Carte
-
Données démographiques
-
Vue de la rue
-
Itinéraire
-
Publicité



































