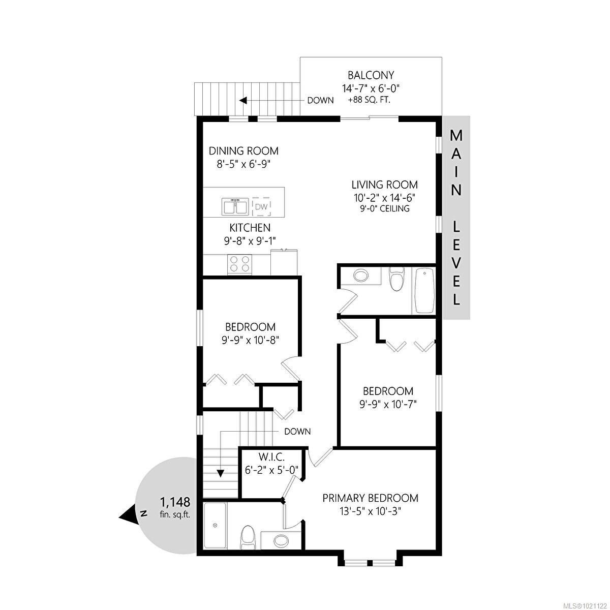
Maison À vendre à Langford, Colombie-Britannique
899 000 $ ÉvaluationExpressMC:5 Chambres
4 Salles de bain
-
Détails
-
Carte
-
Données démographiques
-
Vue de la rue
-
Itinéraire
-
Publicité
MULTIMEDIA



































