Maison À vendre à Langford, Colombie-Britannique
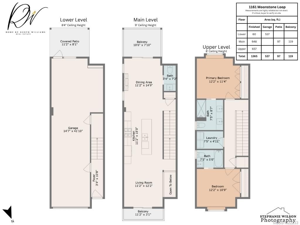
708 000 $ ÉvaluationExpressMC:2 Chambres
3 Salles de bain
-
Détails
-
Carte
-
Données démographiques
-
Vue de la rue
-
Itinéraire
-
Publicité











































