Maison À vendre à Kelowna, Colombie-Britannique
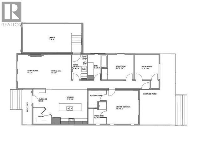
453 800 $ ÉvaluationExpressMC:3 Chambres
2 Salles de bain
-
Détails
-
Carte
-
Données démographiques
-
Vue de la rue
-
Itinéraire
-
Publicité





























